The Quadrangle, Chelsea Harbour, London, SW10 0UG

  • Bedroom The Quadrangle, Chelsea Harbour, London, SW10 0UG
  • Living area The Quadrangle, Chelsea Harbour, London, SW10 0UG
  • Living and dining the Quadrangle, Chelsea Harbour, London, SW10 0UG
  • The Quadrangle, Chelsea Harbour, London, SW10 0UG Balcony
  • The Quadrangle, Chelsea Harbour, London, SW10 0UG Kitchen
  • Quadrangle, Chelsea Harbour, London, SW10 0UG Bedroom
  • The Quadrangle, Chelsea Harbour, London, SW10 0UG Bathroom
  • Quadrangle, Chelsea Harbour, London, SW10 0UG Bedroom with window
  • The Quadrangle, Chelsea Harbour, London, SW10 0UG Family Bathroom
£15,166.67 pcm
3 Bedrooms
3 Bathrooms
£15,166.67 pcm
3 Bedrooms
3 Bathrooms

Property Features

  • Pets

Property Summary

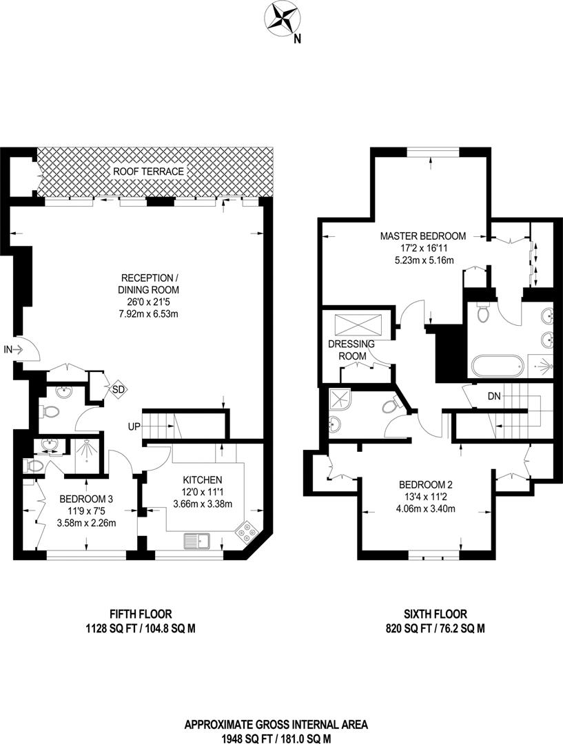
Located in the Heart of Chelsea Harbour this luxury split level penthouse benefits from a spacious living room, private terrace, modern kitchen, air-conditioning 3 double bedrooms with en suite bathrooms and additional small/single room.

Available for SHORT TERM and/or LONG TERM

Full Details

The Quadrangle building benefits from porter service, 24hr CCTV and riverside location. Just moments away from Imperial Wharf Overground and various local shops and restaurants.