One Blackfriars, Bankside, SE1 9GJ

£2,200,000 Asking Price
2 Bedrooms
2 Bathrooms
£2,200,000 Asking Price
2 Bedrooms
2 Bathrooms

Property Features

  • Chain Free
  • 3D Virtual Viewing
  • London Eye Views
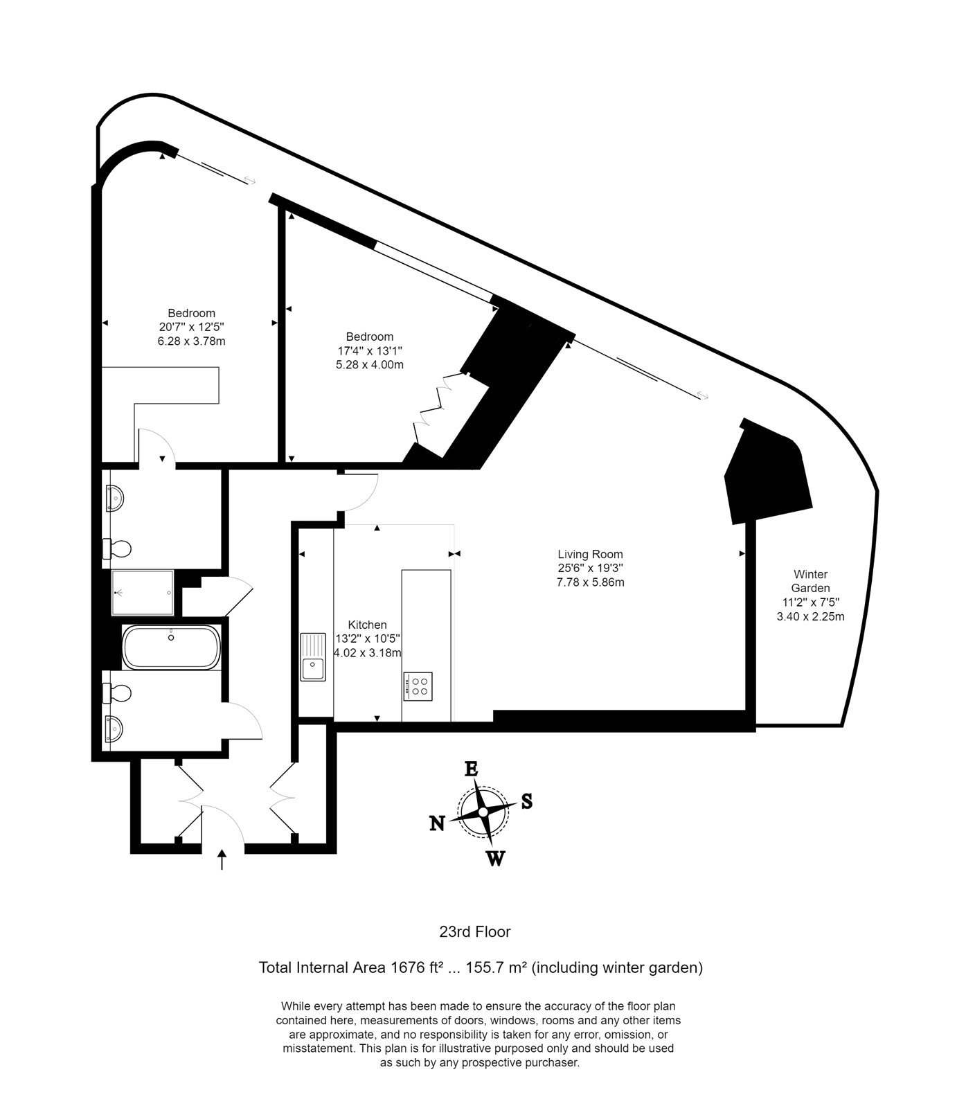
  • 1676 Sq Ft
  • Winter Graden
  • 24 Hr Harrods Concierge
  • Valet Parking
  • Gym, Spa & Swimming Pool
  • Private Screening Room
  • Executive Lounge
  • Riverside Living

Property Summary

London Eye Views | 1676 Sq Ft | Winter Graden | 3D Virtual Viewing | 23rd Floor | 24 Hr Harrods Concierge | Valet Parking | Gym | Spa | Swimming Pool | Tteatment Rooms | Private Screening Room | Snow Room | Wine Store Executive Lounge | Southwark Tube | Chain Free

This 1676 Sq Ft apartment (including winter garden) has been finished to an impeccable specification and comprises of a bright open-plan luxury kitchen and reception area, two double bedrooms with fitted wardrobes, en-suite and a guest bathroom, and a winter garden, which can be accessed from both bedrooms and the reception area.

One Blackfriars brings not only the exclusive privilege of living in an architectural icon, but also the lifestyle found in the leading hotels of the world. Residents will enjoy a wide array of exquisite on-site luxury amenities, including a 20-metre swimming pool, private screening room, executive lounge, golf simulator, wine cellar, thermal suite facilities alongside a gymnasium with state-of-the-art equipment overlooking a private Zen garden.

A dedicated 24-hour Harrods Estate concierge will also be provided to assist residents with a variety of services, ranging from travel arrangements and tickets to world-class events to dinner parties.

One Blackfriars specification is as high as it gets. Every apartment benefits from oak and stone flooring, Miele appliances, SONOS Sound Bar system, built-in touch screen control system and marble bathrooms. Everything you would expect from a Berkeley flagship development.

Moments from recently renovated Southwark tube station and short walking distance to Blackfriars (6 minutes) and Waterloo stations (12 minutes) the property benefits from excellent transport links, including Jubilee, District and Circle, Bakerloo, Northern, Waterloo and City line and London Overground services.

Currently rented on an AST tenancy. Please enquire for details.

Leasehold – 995 years remaining
Service Charge – £17,673
Ground Rent – £1500 per year
EWS1 Certificate – Pass