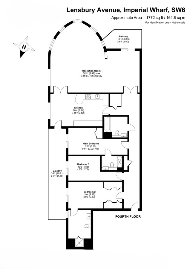
Marina Point, Lensbury Avenue, Fulham, London, SW6 2GX

£2,275,000 Asking Price
3 Bedrooms
3 Bathrooms
£2,275,000 Asking Price
3 Bedrooms
3 Bathrooms

Property Summary

Unique three bedroom, three bathroom apartment set in this popular riverside development.

Full Details

Large flat with stunning river views from its balconies, this stylish fourth-floor (with lift), three-bedroom apartment offers bright open-plan living and access to communal gardens with a 24-hour porter. The principal bedroom includes a large fitted wardrobe and en-suite. The modern, fully fitted kitchen features Miele appliances and granite worktops with access to a private balcony, while the reception/dining room with floor-to-ceiling windows opens onto a second private balcony. Two parking spaces are included, The property can also be purchased fully furnished if required.