Flagstaff House, St George Wharf, Vauxhall, SW8 2LZ

£1,850,000 Asking Price
3 Bedrooms
2 Bathrooms
£1,850,000 Asking Price
3 Bedrooms
2 Bathrooms

Property Features

  • 24 Hour Concierge
  • EWS1 Compliant
  • Excellent Transport Links
  • Award winning riverside development
  • Stunning Views
  • 50ft Reception
  • Upgraded Specification
  • River views
  • Large Double Bedrooms
  • Riverside Living
  • Onsite Facilitiess

Property Summary

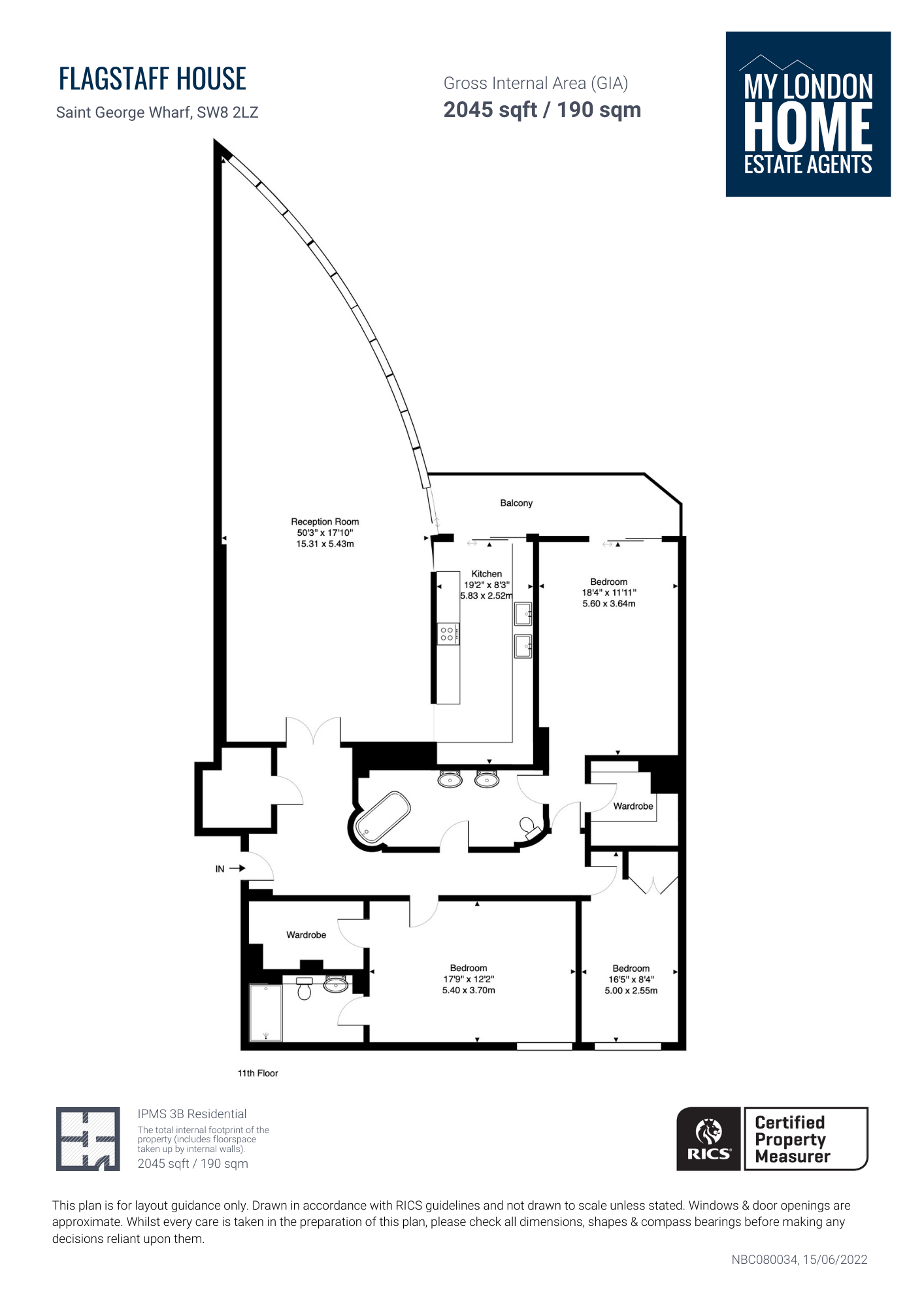
Exceptional Three Bedroom Apartment | 2,045 Sq Ft | Breathtaking River Views | Stunning 50 ft Reception With Floor to Ceiling Windows | Prow Style Apartment | Two Luxury Refitted Bathrooms | Spacious Dining Area | Sleek Fitted Kitchen | Private Balcony | Walk-In Wardrobes To Principal & Second Bedrooms | 24hr Concierge

A truly exceptional “Prow” style apartment with river views towards Westminster and The London Eye.

This spacious three-bedroom apartment has been redesigned and upgraded from its original specifications and offers an impressive 2,045 square feet of internal living space with a substantial 50ft reception, featuring floor-to-ceiling windows which offer breath-taking views down the river to Westminster bridge, London Eye and Houses of Parliament.

The apartment has been thoughtfully designed with entertaining in mind whilst also maintaining a practical space for everyday living. From the moment you are welcomed in you are instantly impressed with the unique design and impeccable finishes.

An impressive dining area that comfortably hosts a number of guests, a smart fitted kitchen with access to a private terrace is separated off by a stylish custom-made glass screen, and to the front of the apartment a more formal seating area enjoys fantastic views.

The apartment further features two large double bedrooms both with walk-in wardrobes. There is an ensuite bathroom and a large custom made bathroom suite. The third double bedroom is currently being used as an office.

The apartment has been fitted with underfloor heating whilst also having air cooling in all rooms along with multimedia throughout, all heating, lighting, curtains/blinds and AV connecting to an app for easy control.

This exceptional apartment is situated in this prime London riverside location, and benefits from a range of onsite facilities including a 24-hour concierge service, landscaped courtyard gardens, bars and restaurants, coffee shops, an NHS doctor, 24-hour gymnasium, dentist, Pret, and supermarket onsite, and Little Waitrose, Starbucks and Chinese supermarket opposite.

St George Wharf is adjacent to Vauxhall underground and mainline stations and River taxi offering convenient access to the Victoria Line and national rail links to Waterloo and the South West making the whole of London accessible in minutes.

Underground parking is available to rent, either short-term or long term.

Tenure: Leasehold
Lease Term: 999 years from 25th December 1999
Council Tax Band: H
Rating Authority: Lambeth
Ground Rent : £200 per annum
Service Charge: £12,821 Per Annum including Reserve fund contribution
Parking: Available to rent separately
EWS1: Pass