Watersplash Lane, Warfield, Bracknell, Berkshire, RG42

£1,500,000 Guide Price
4 Bedrooms
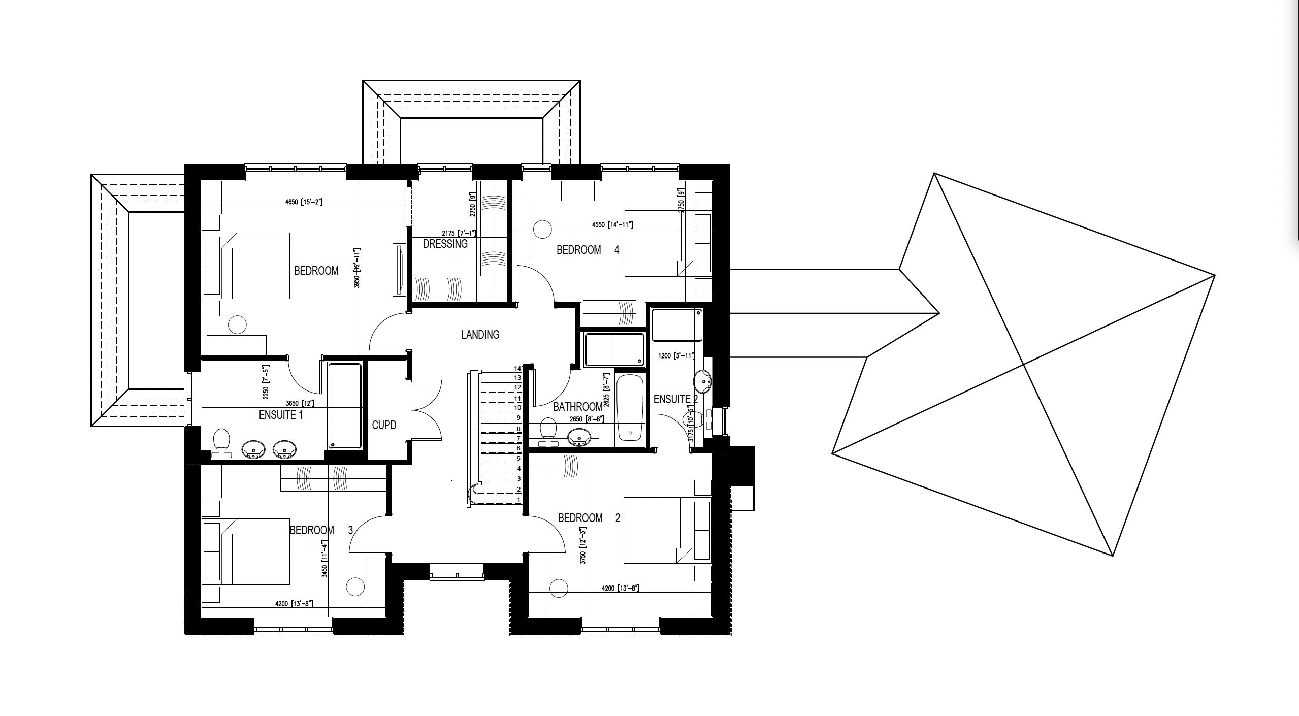
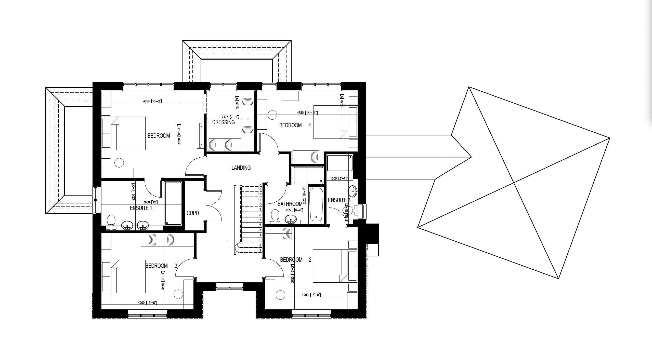
3 Bathrooms
£1,500,000 Guide Price
4 Bedrooms
3 Bathrooms

Property Features

  • Exciting Opportunity
  • Potential to save £66,000 in Stamp Duty
  • Choose and design your own kitchen, bathrooms etc.
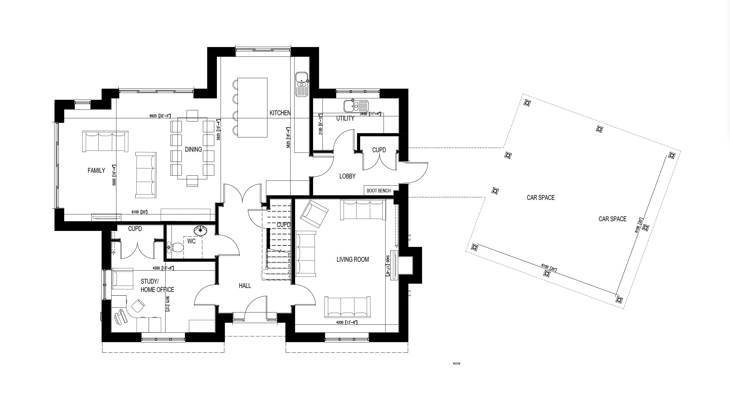
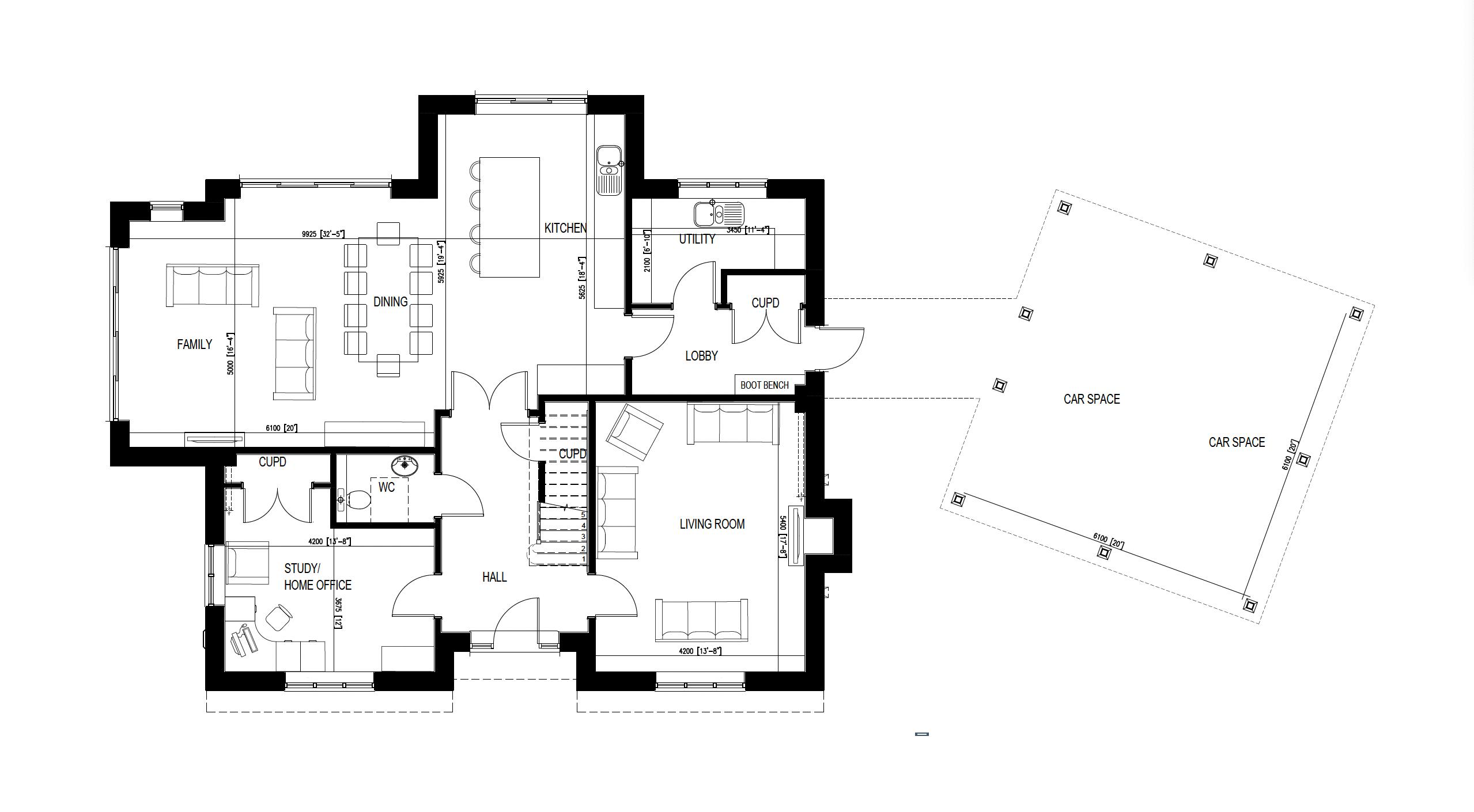
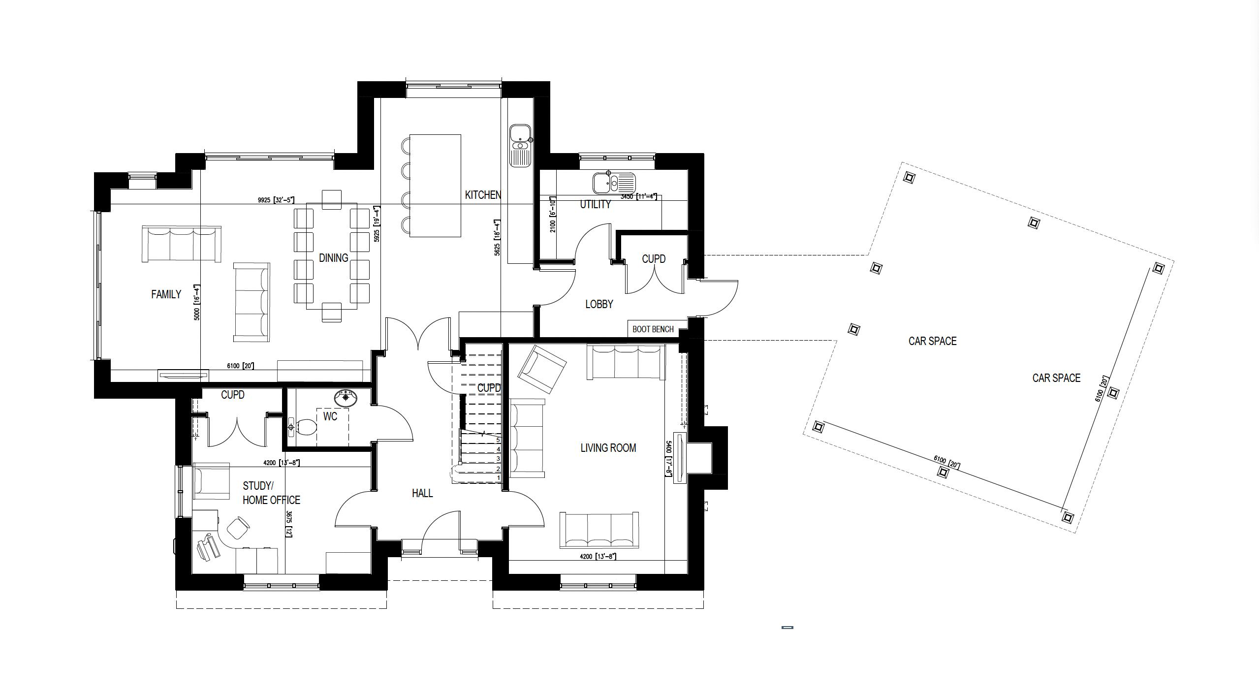
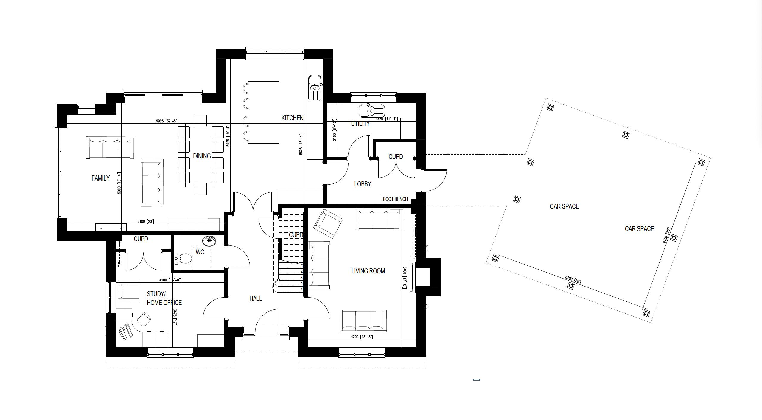
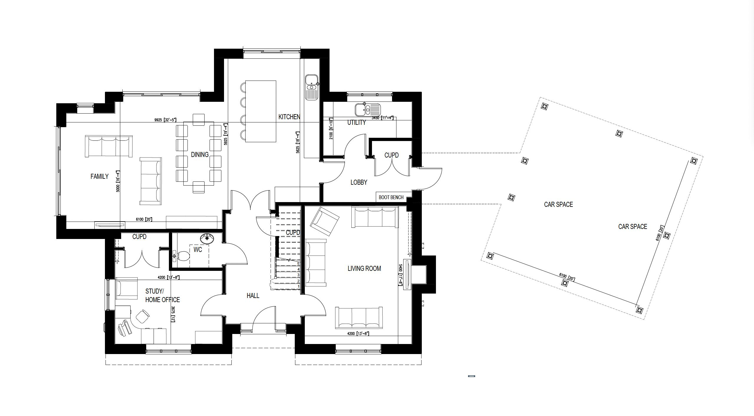
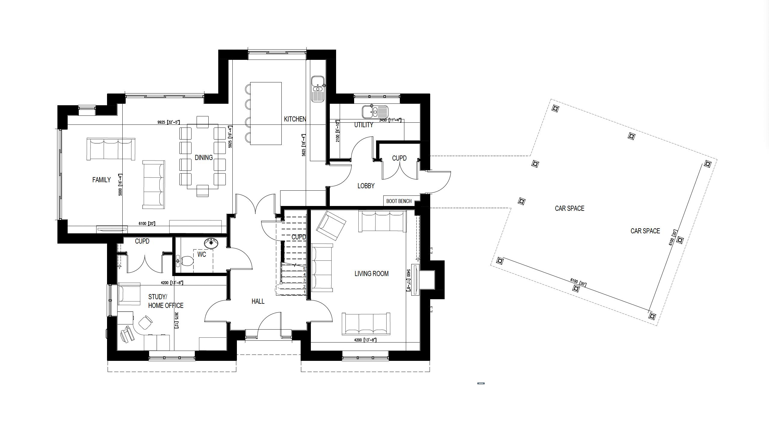
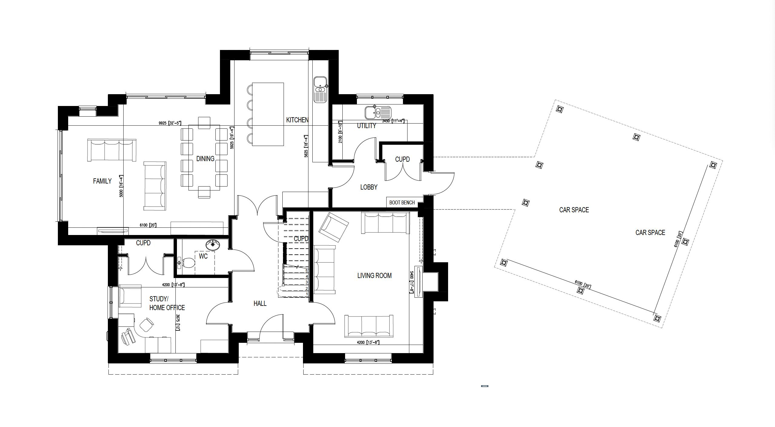
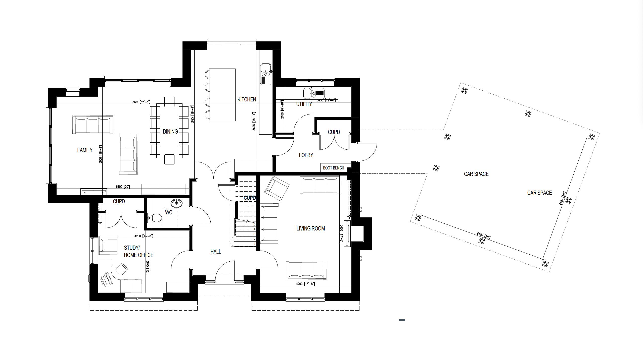
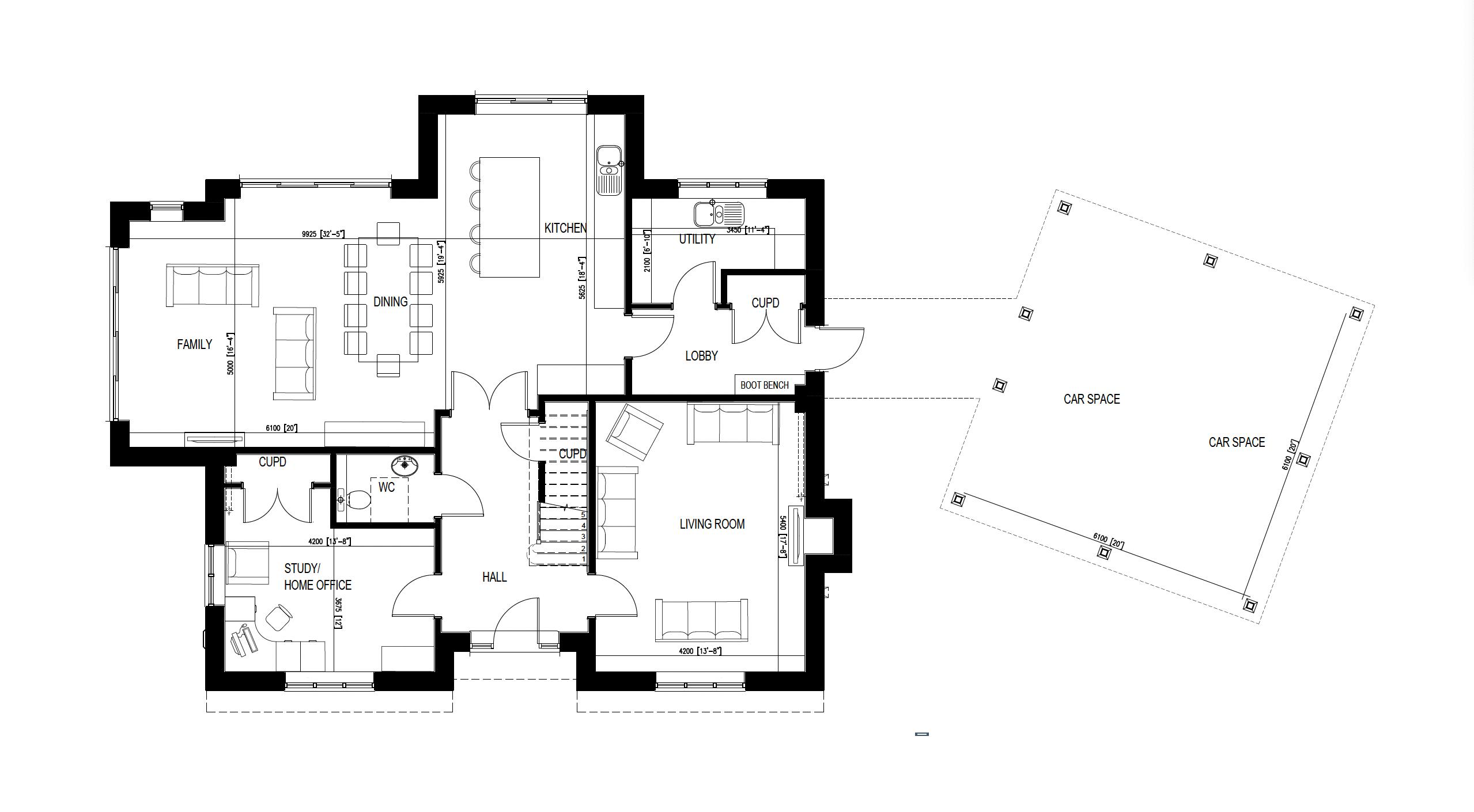
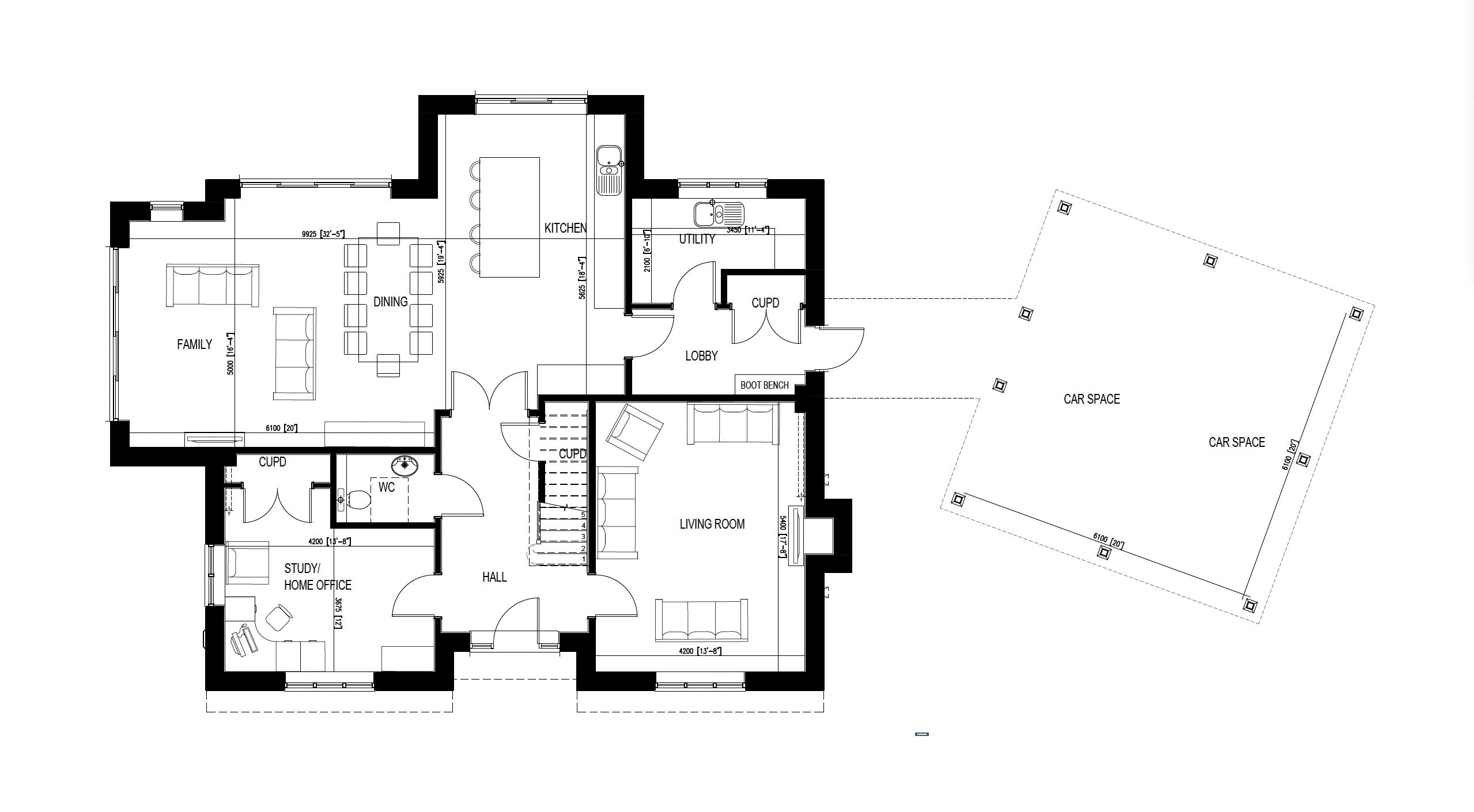
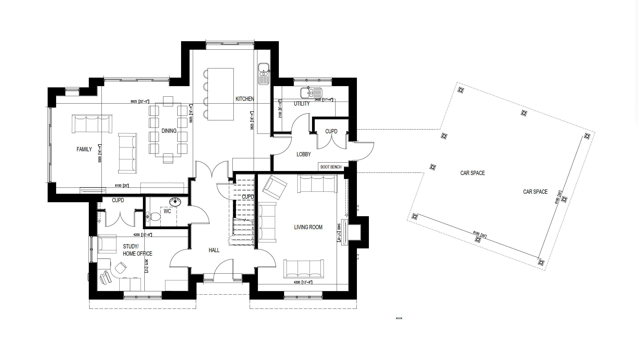
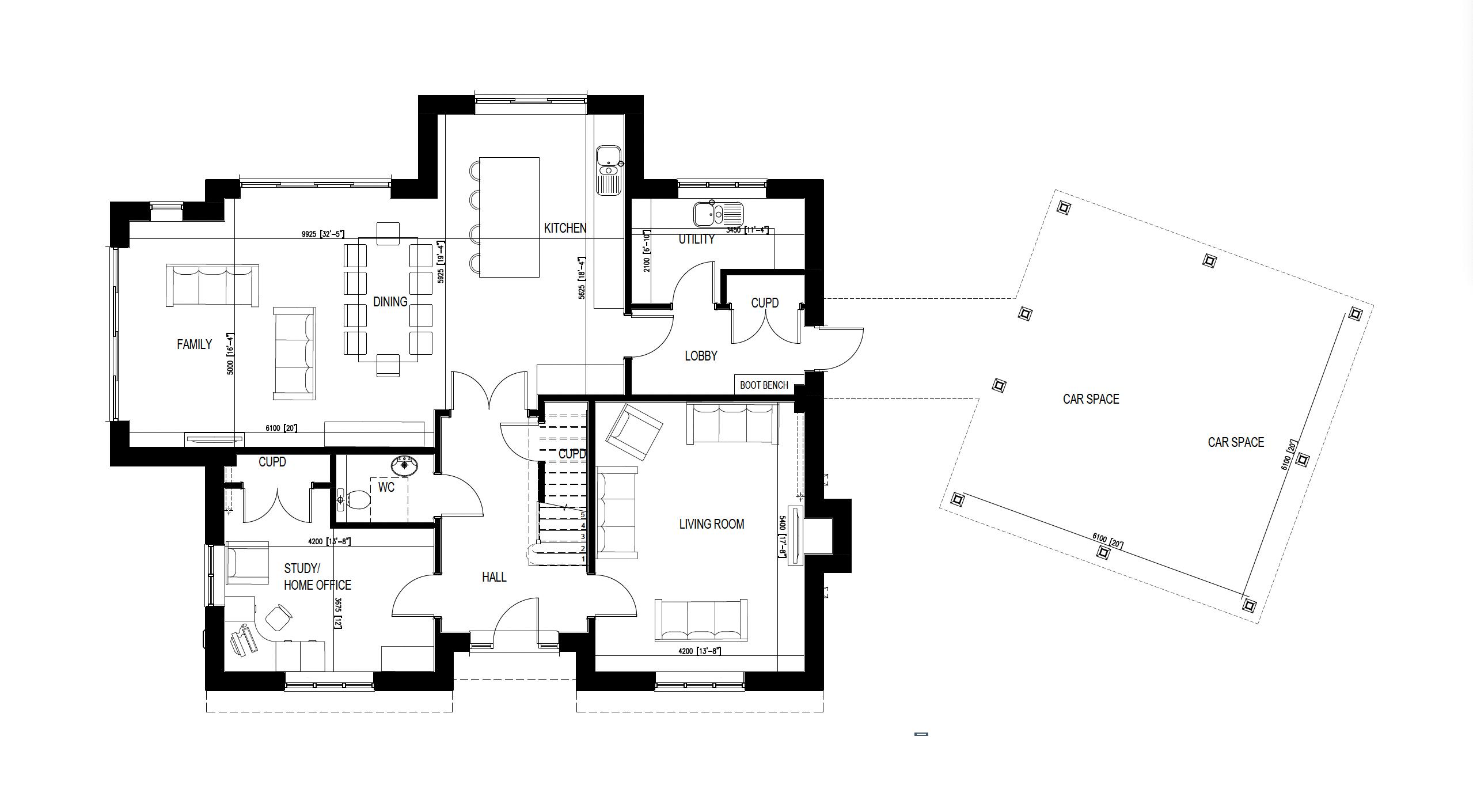
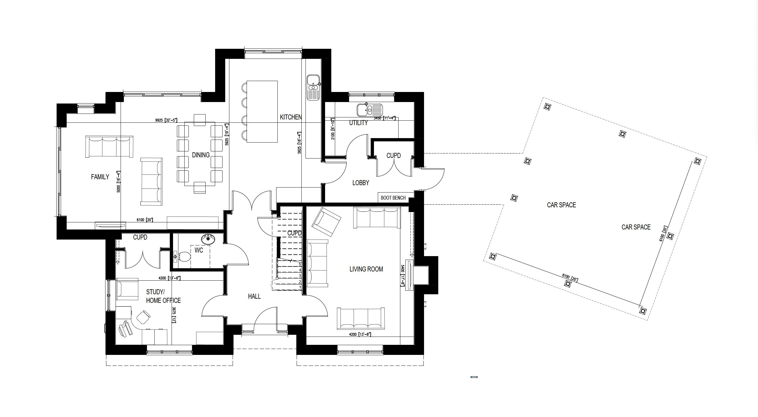
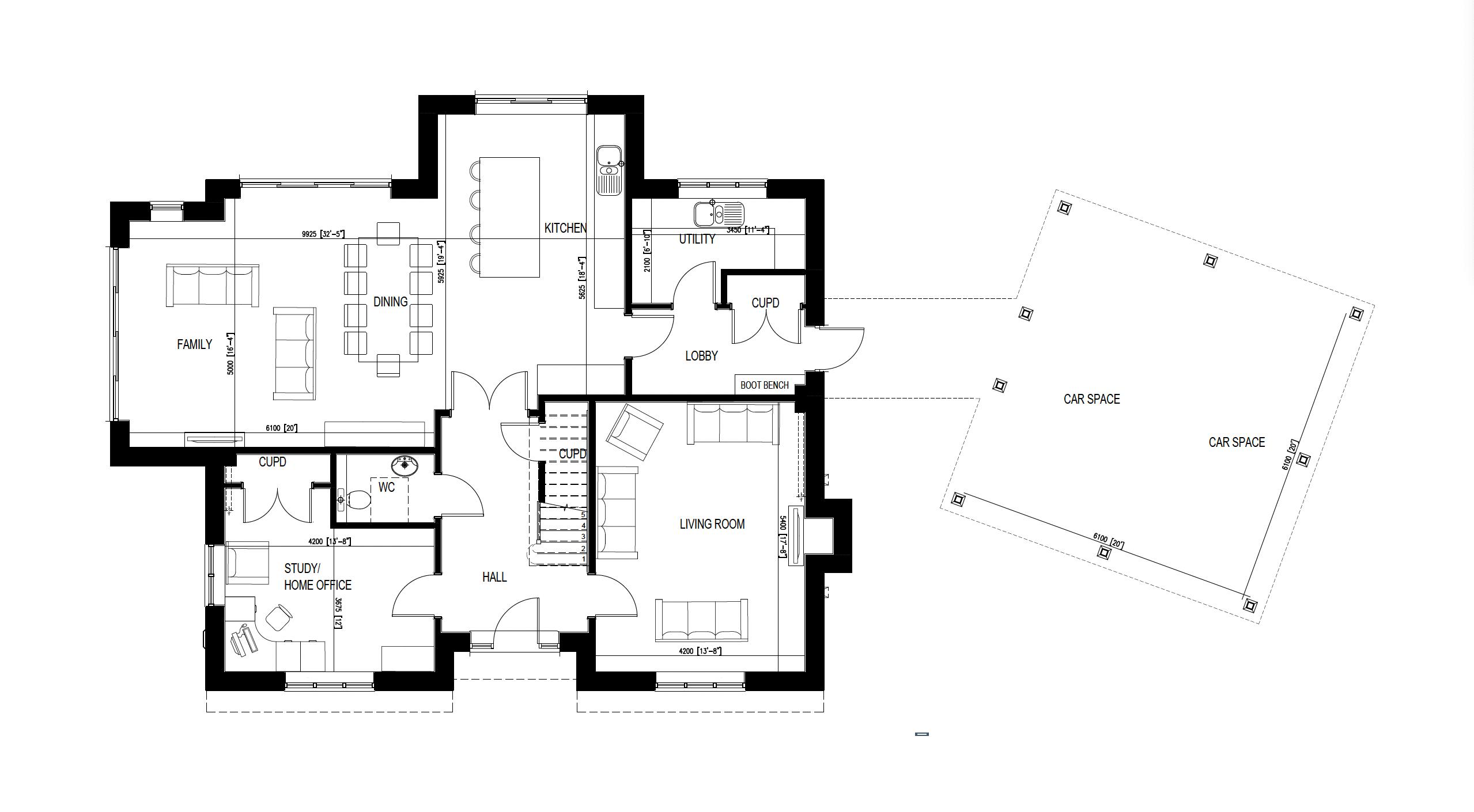
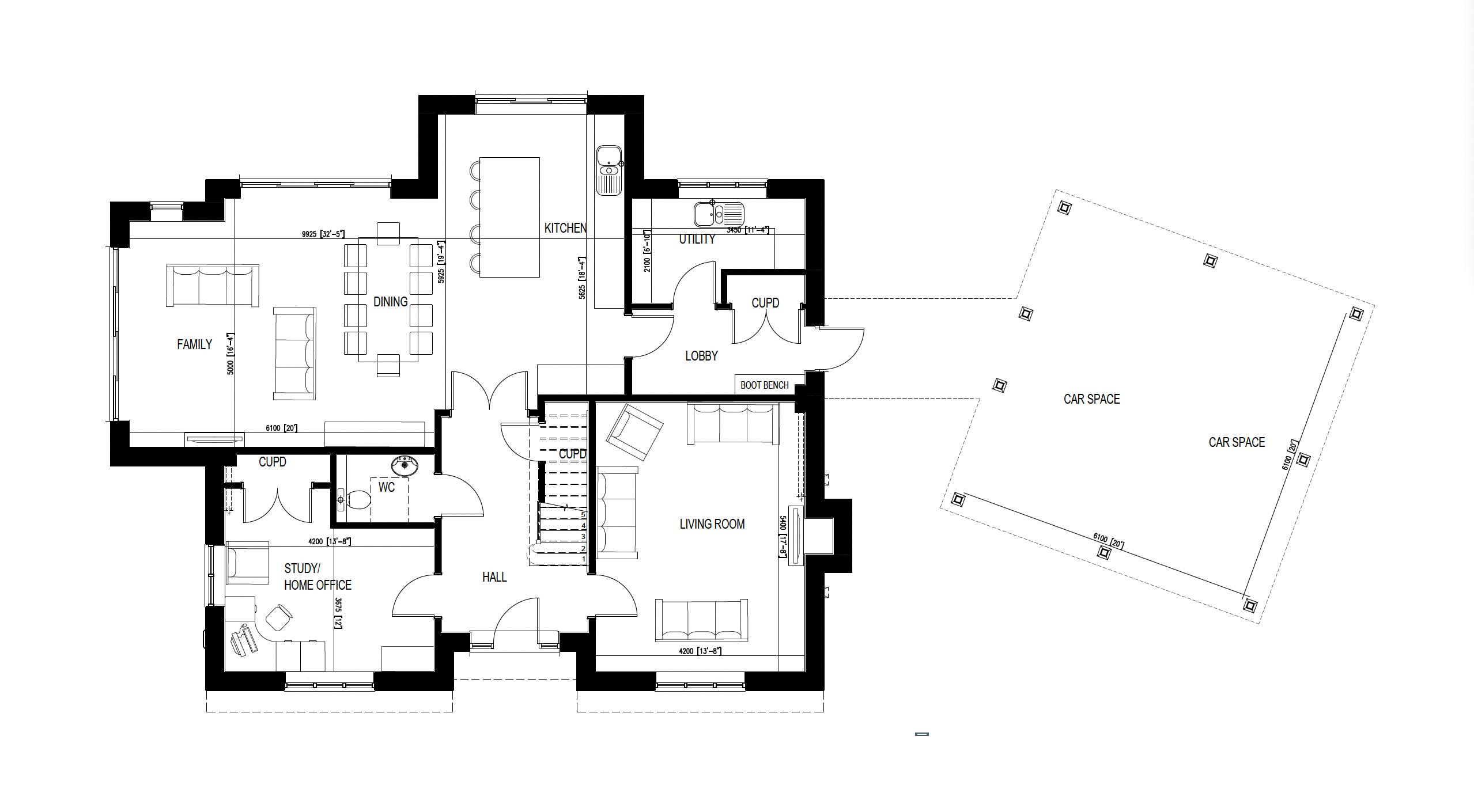
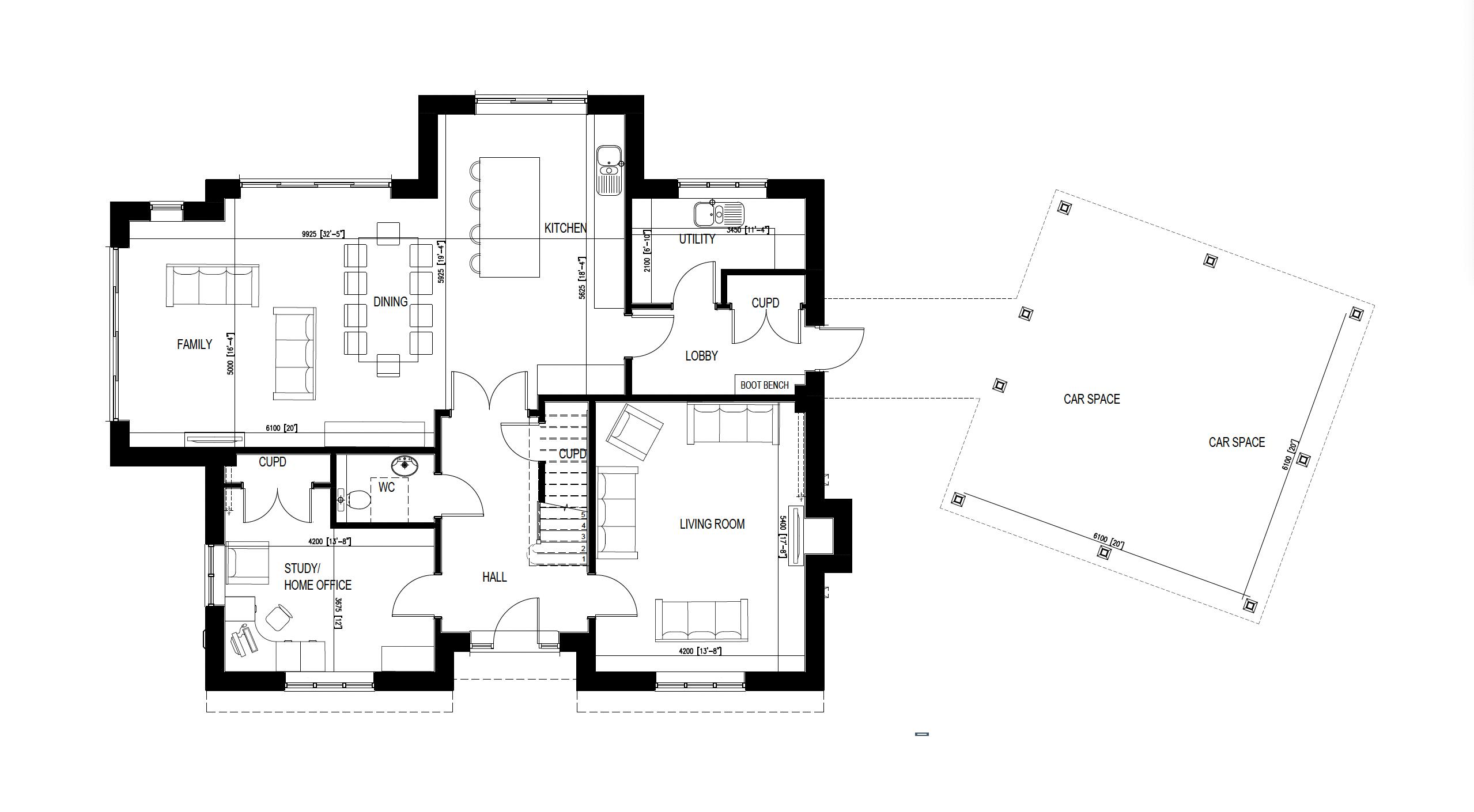
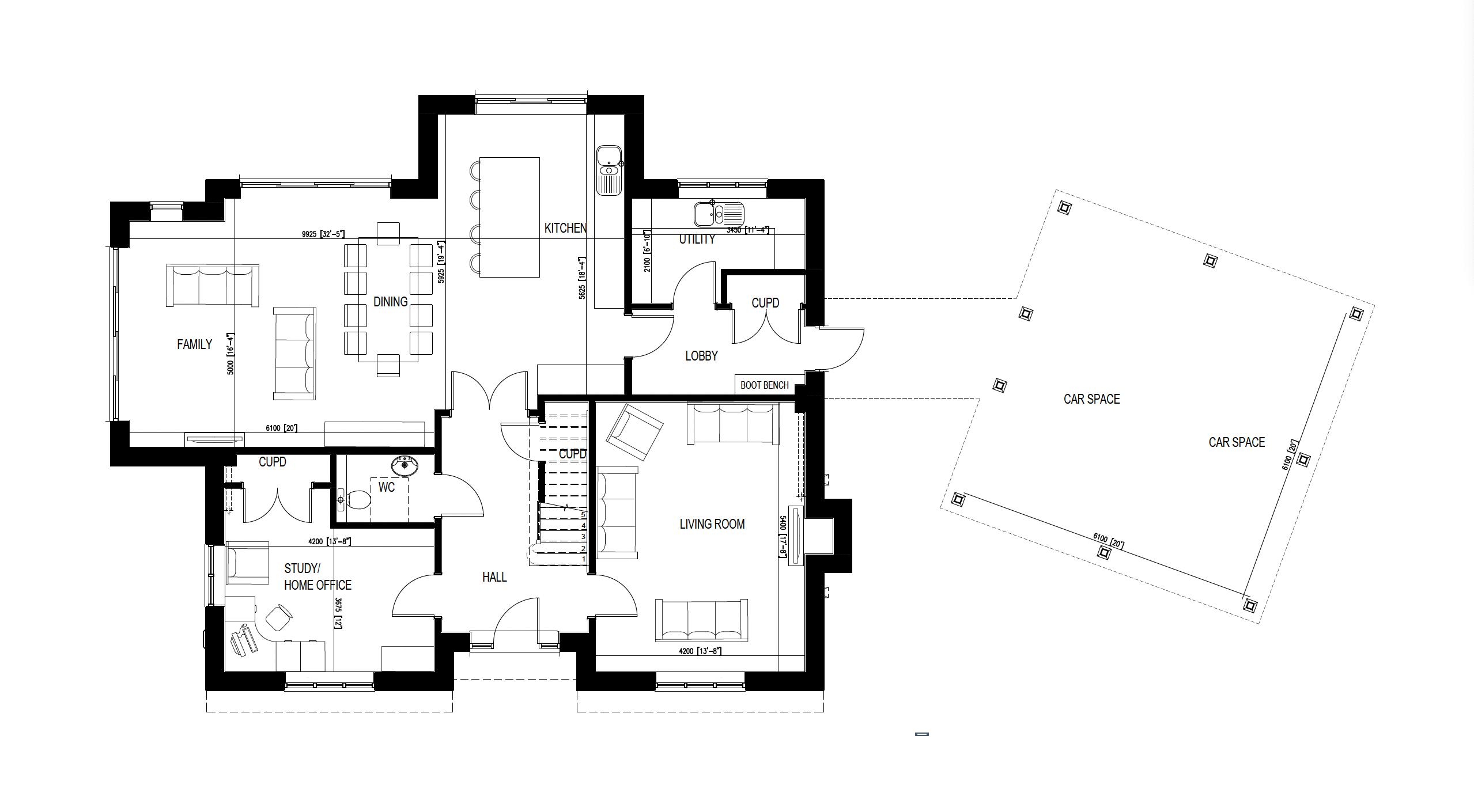
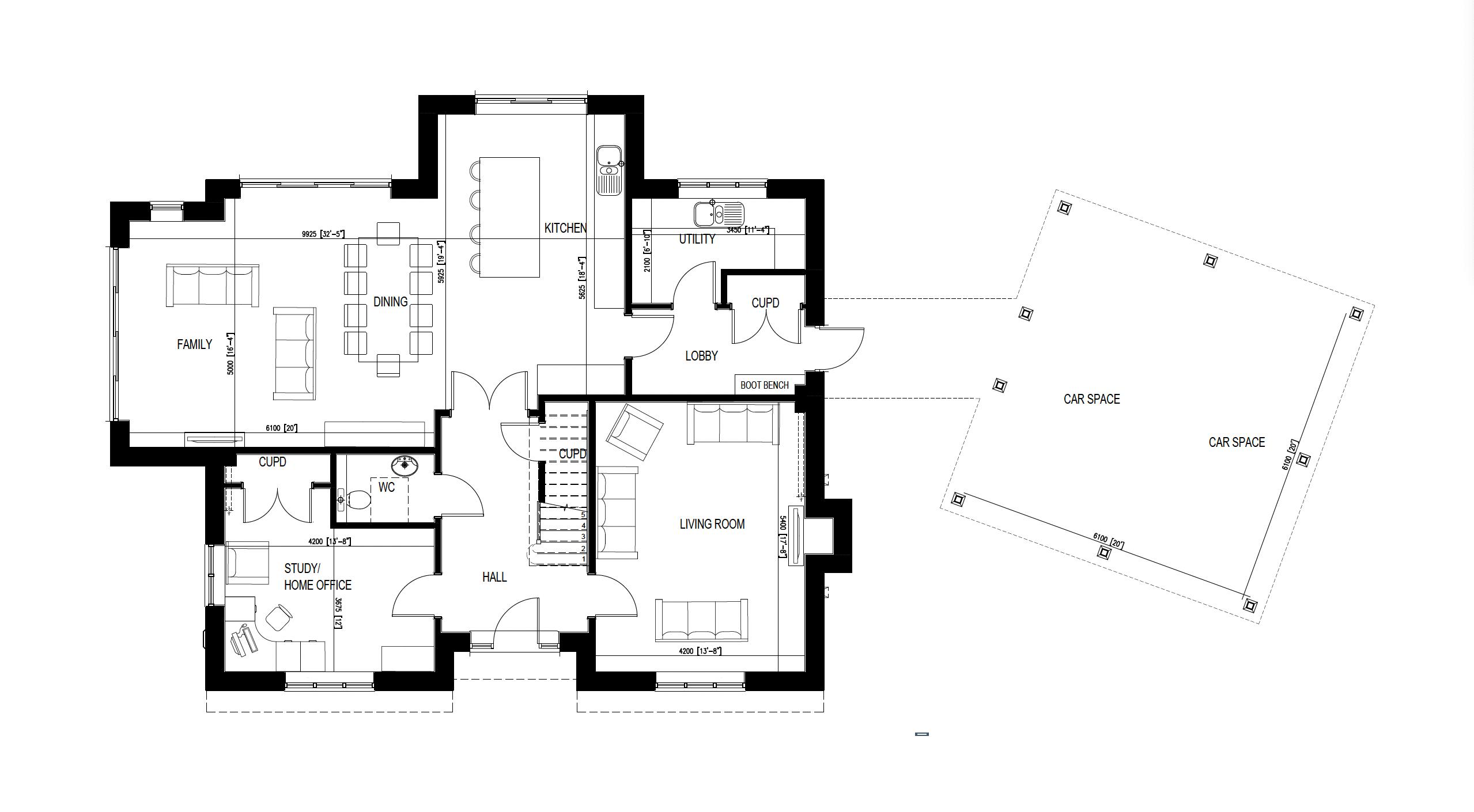
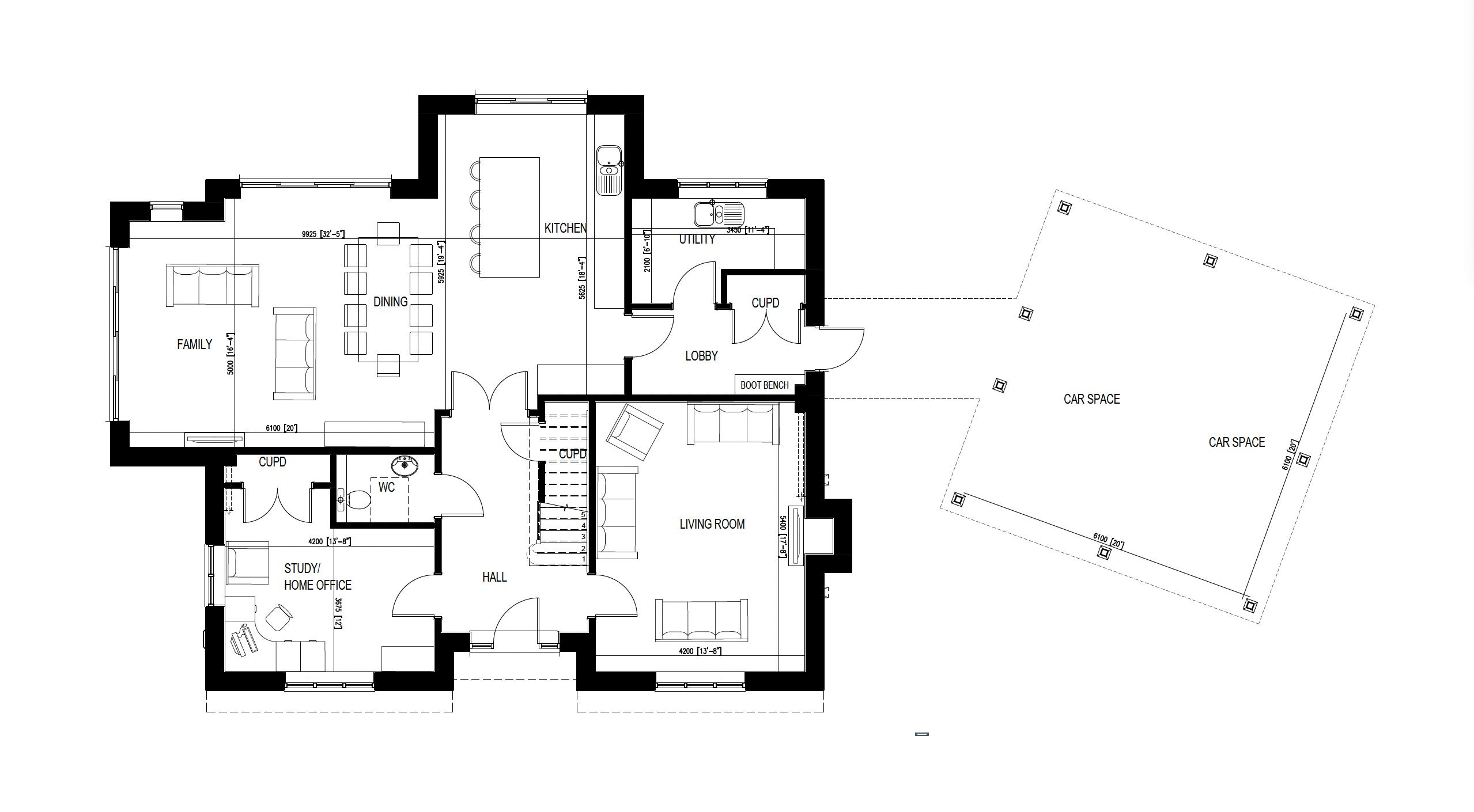
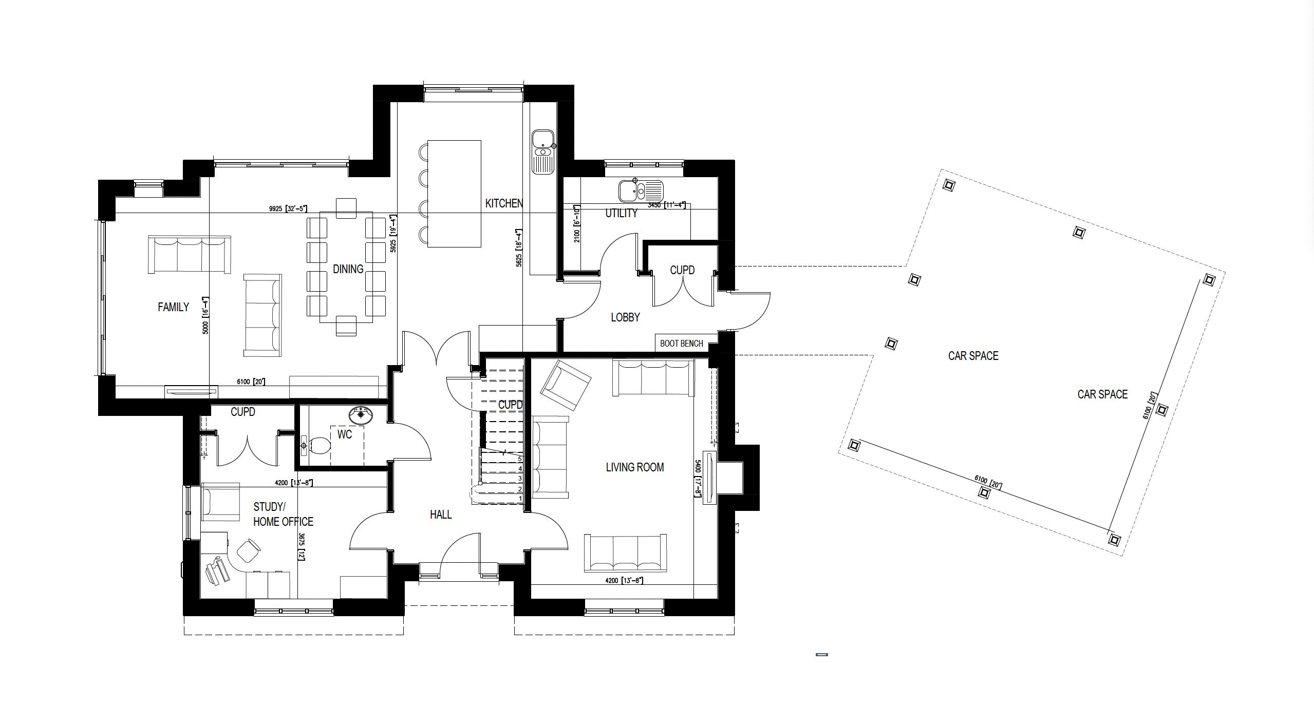
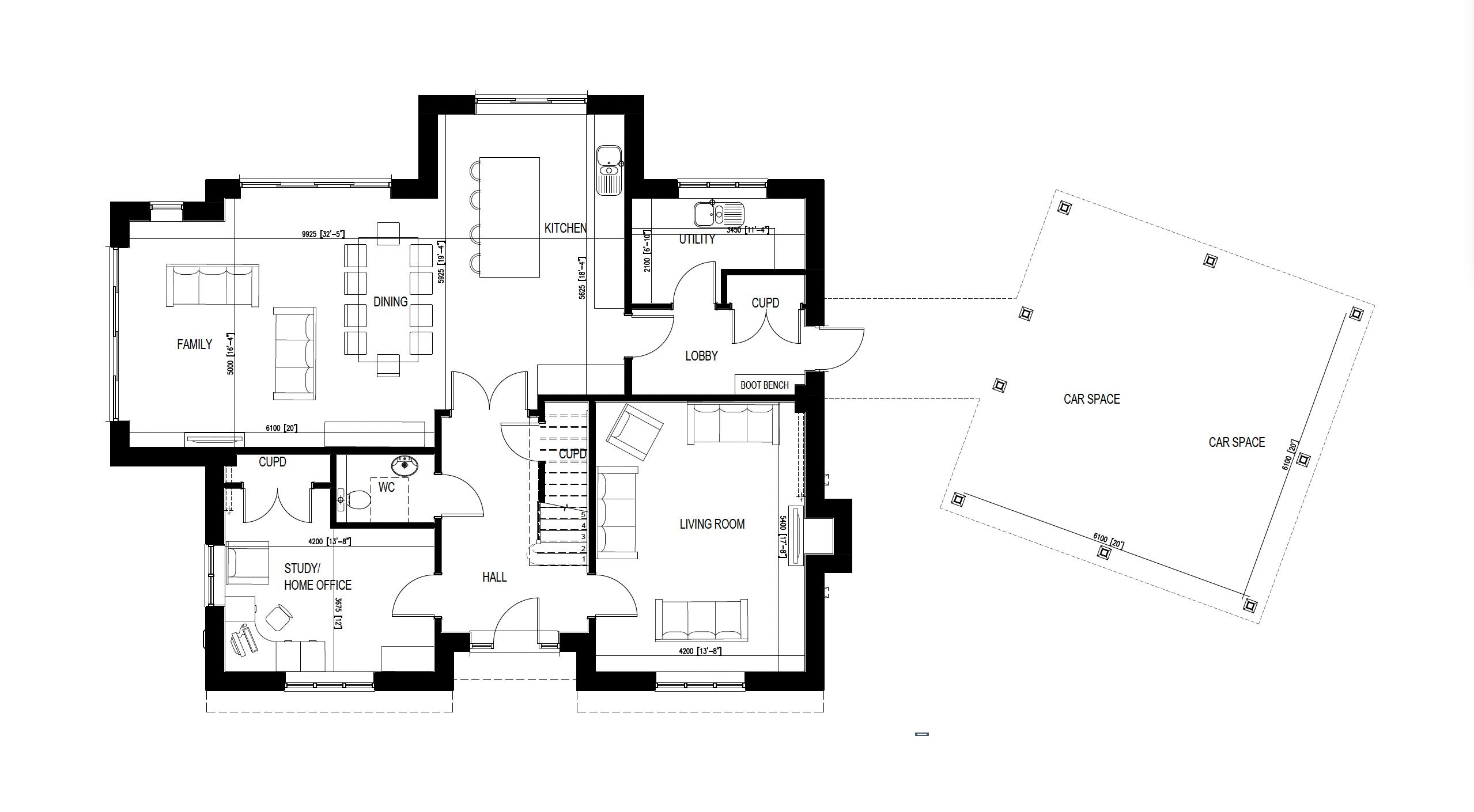
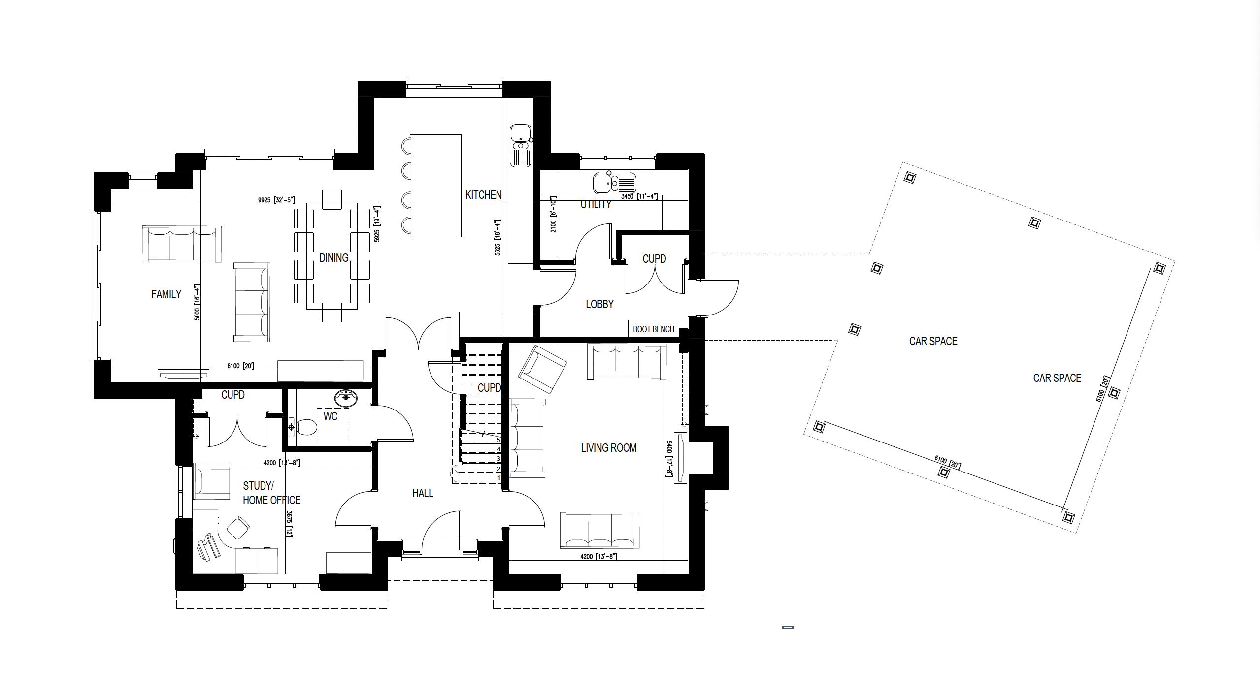
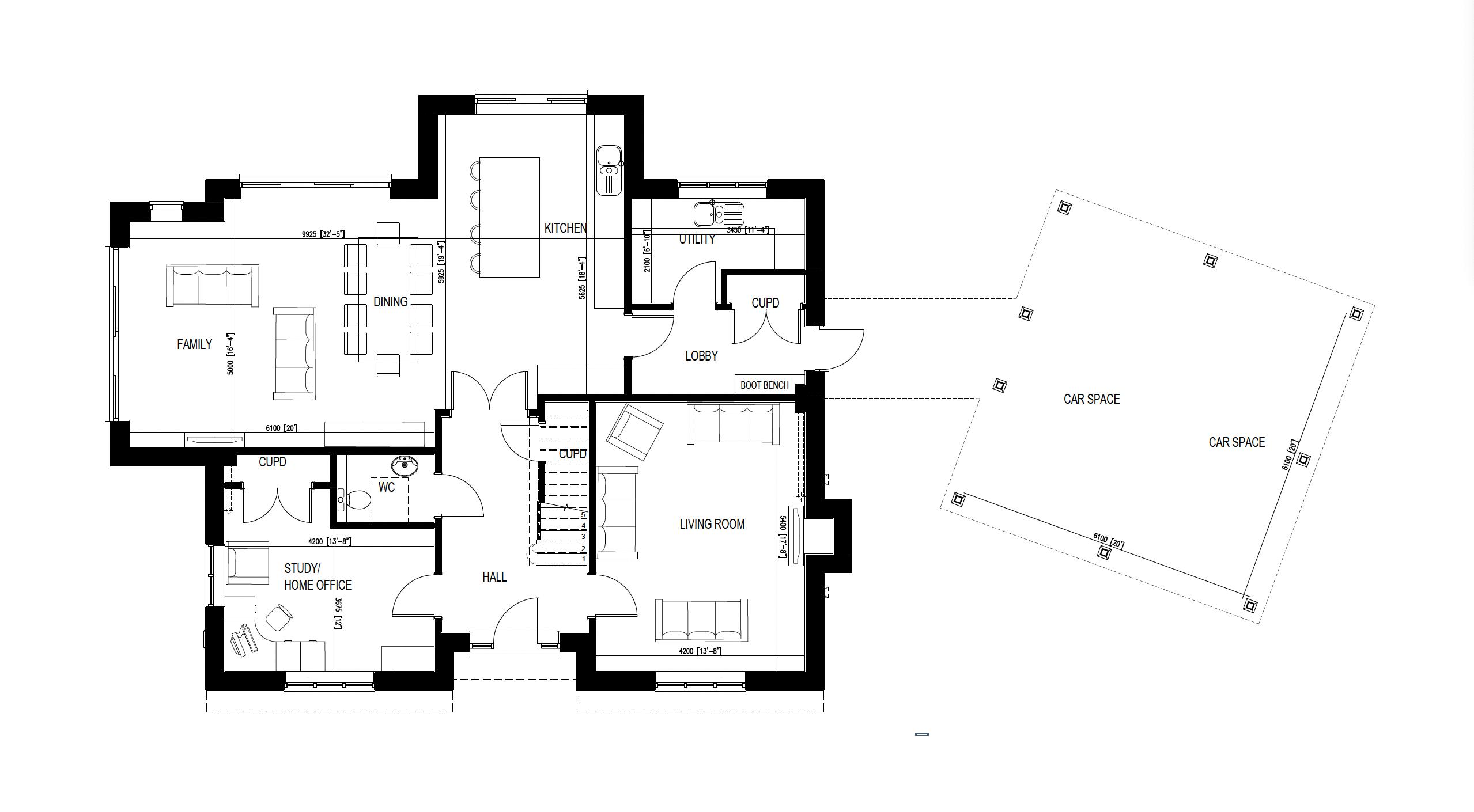
  • Kitchen/diner/family room
  • Utility
  • Study
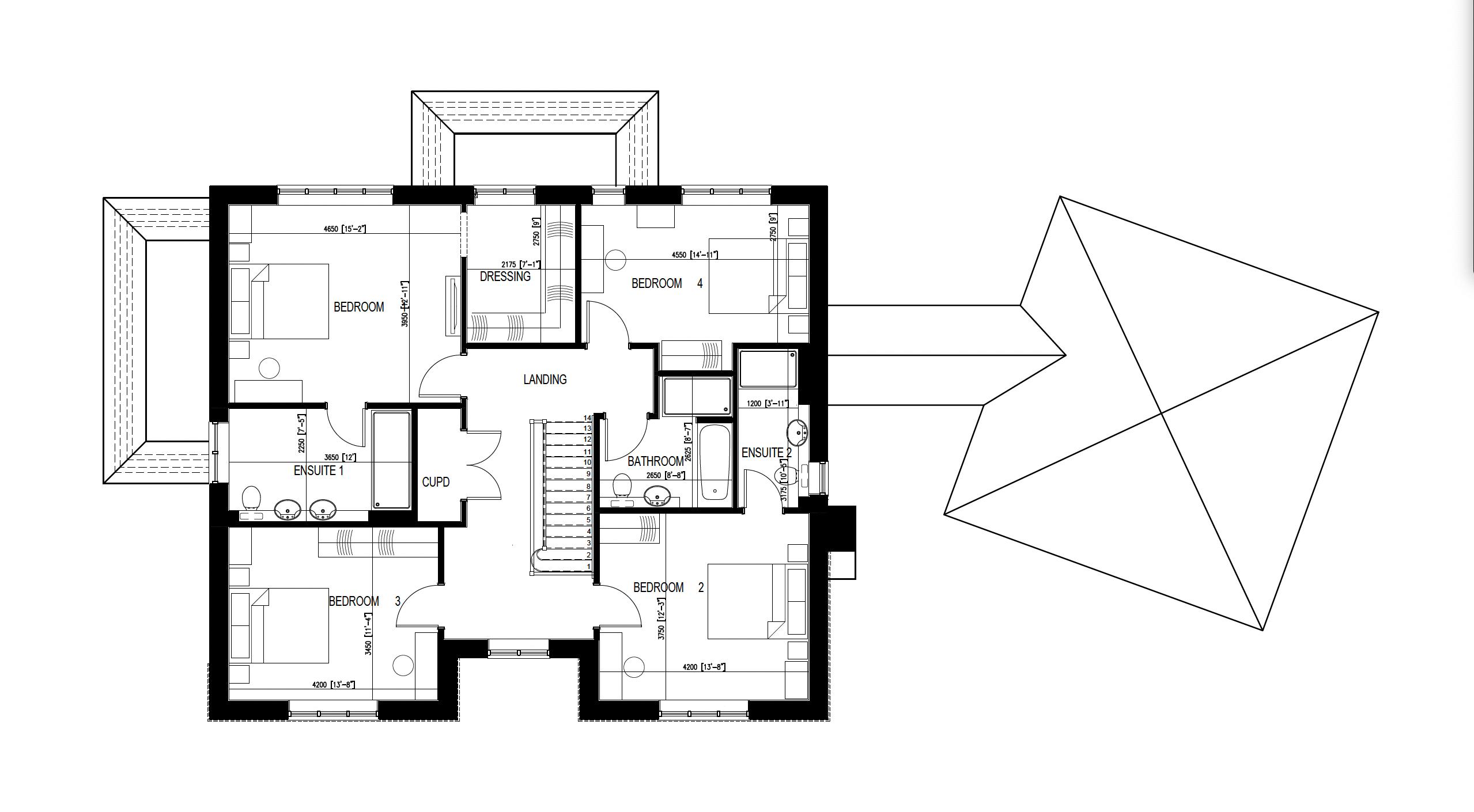
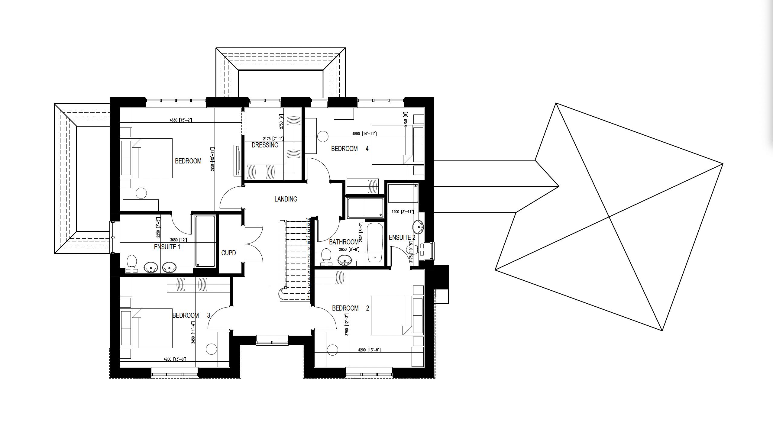
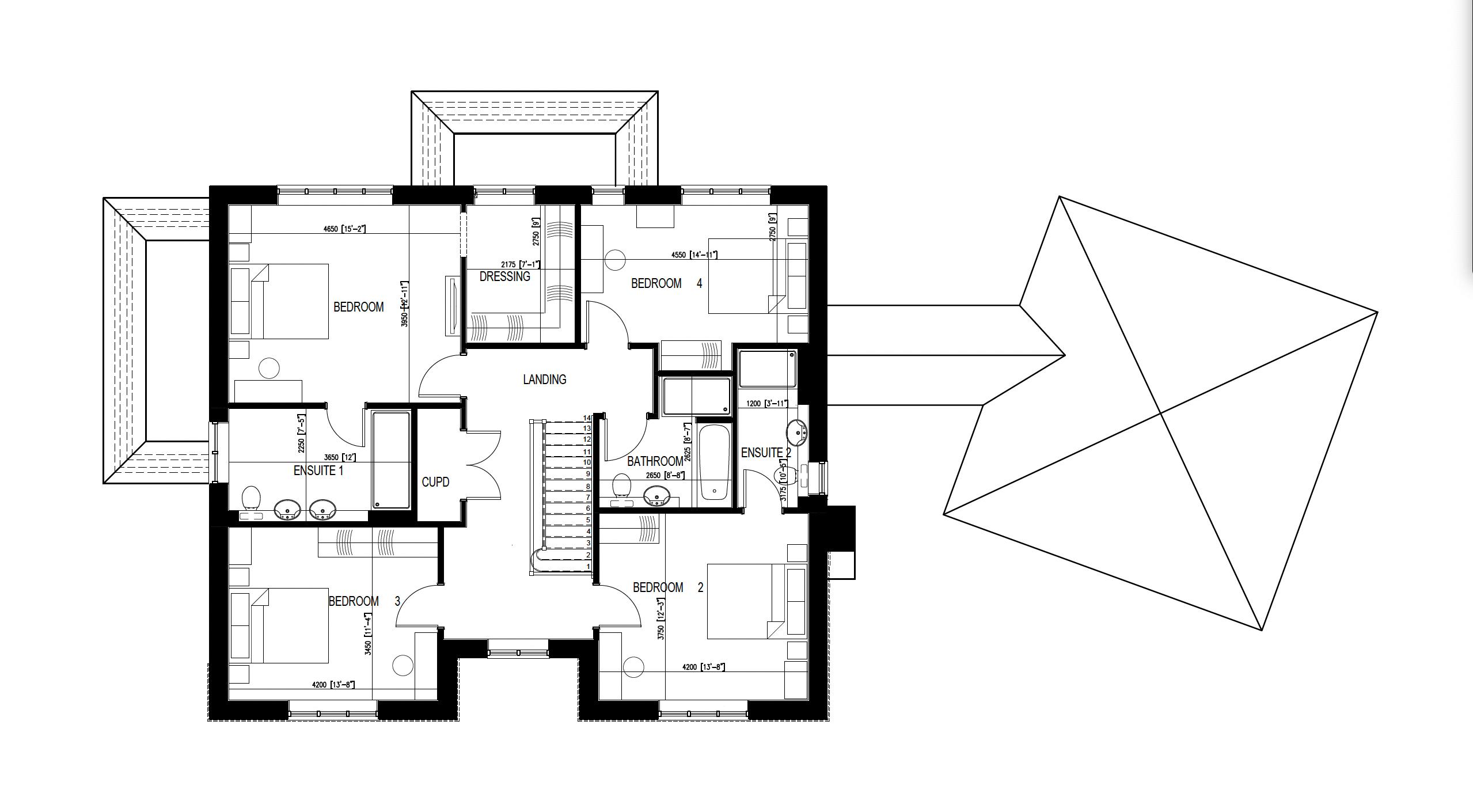
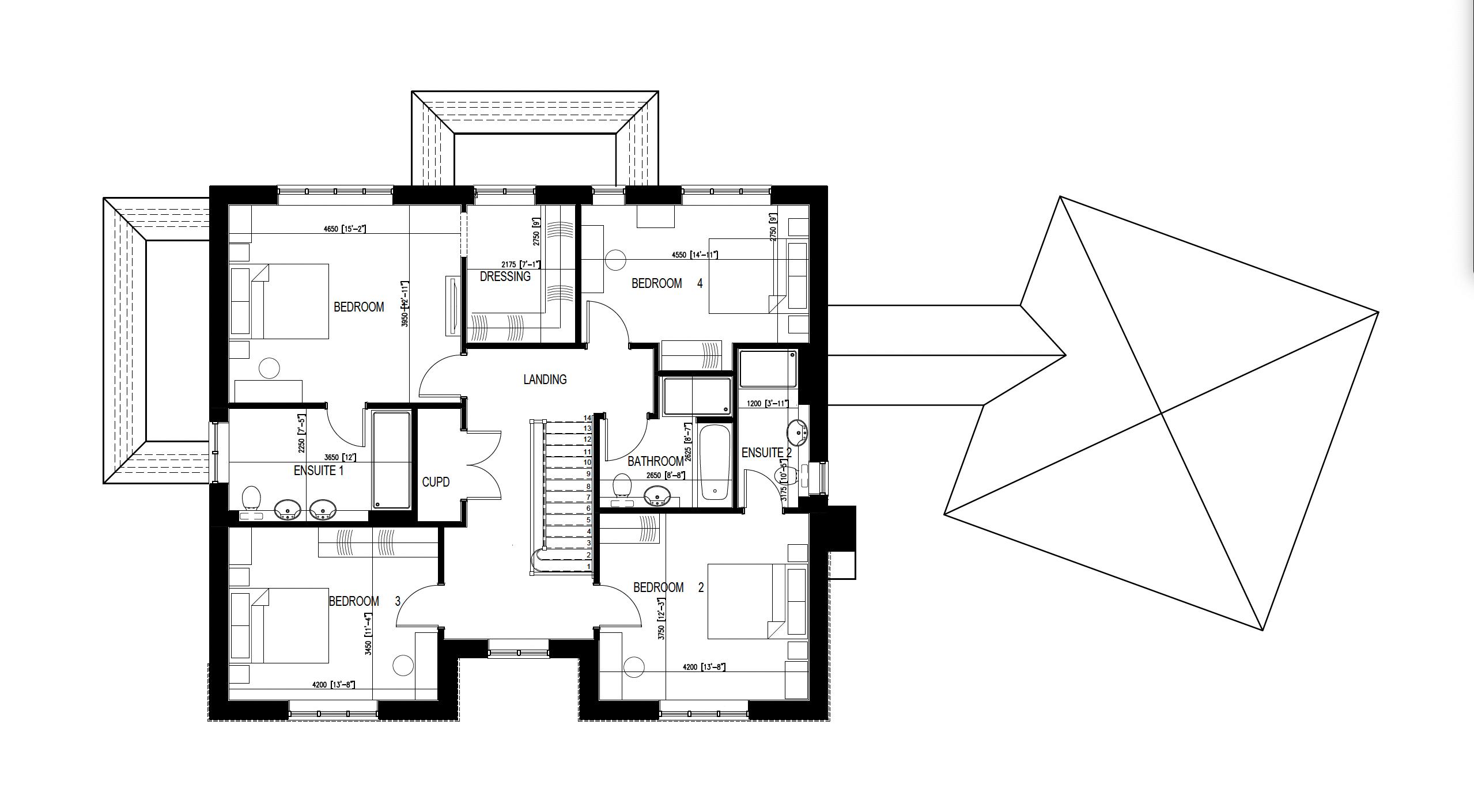
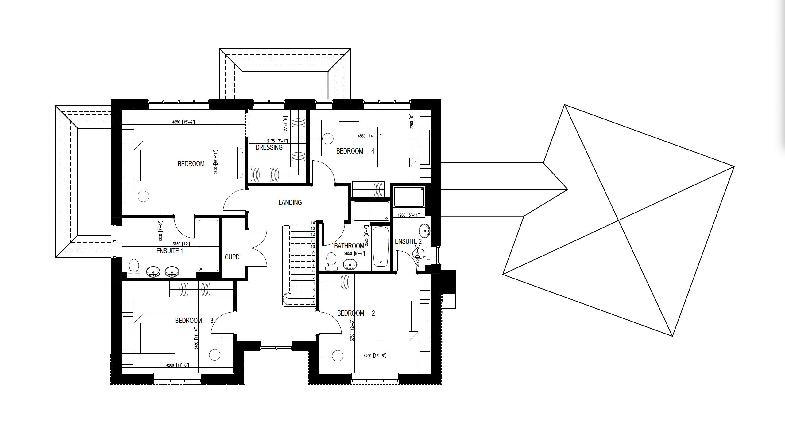
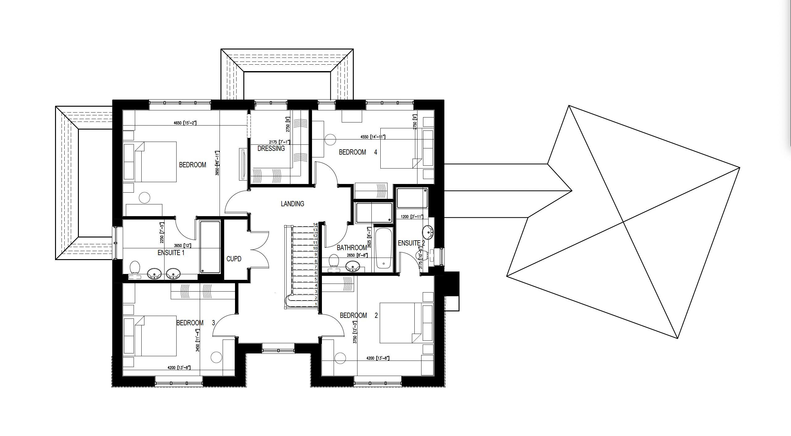
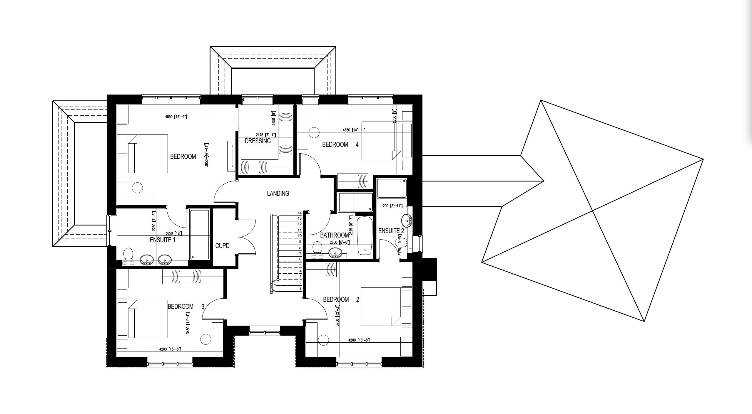
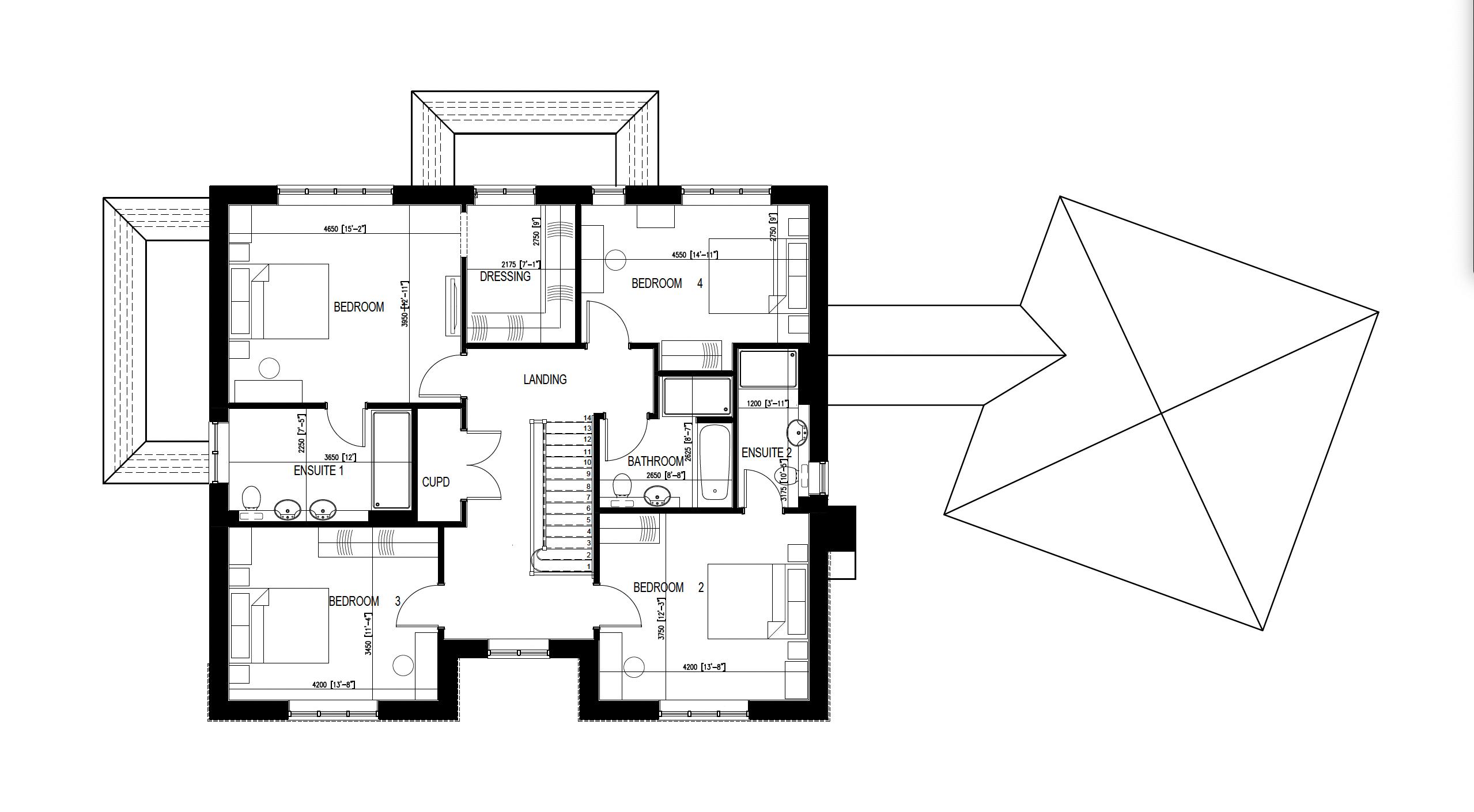
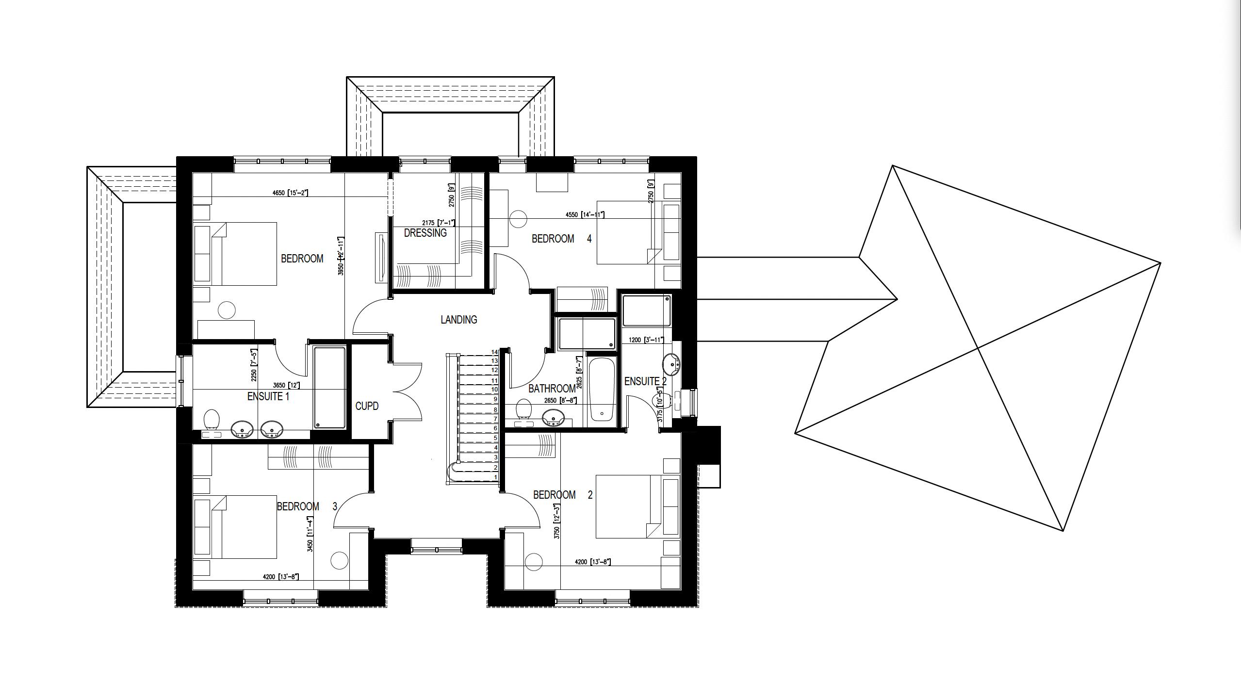
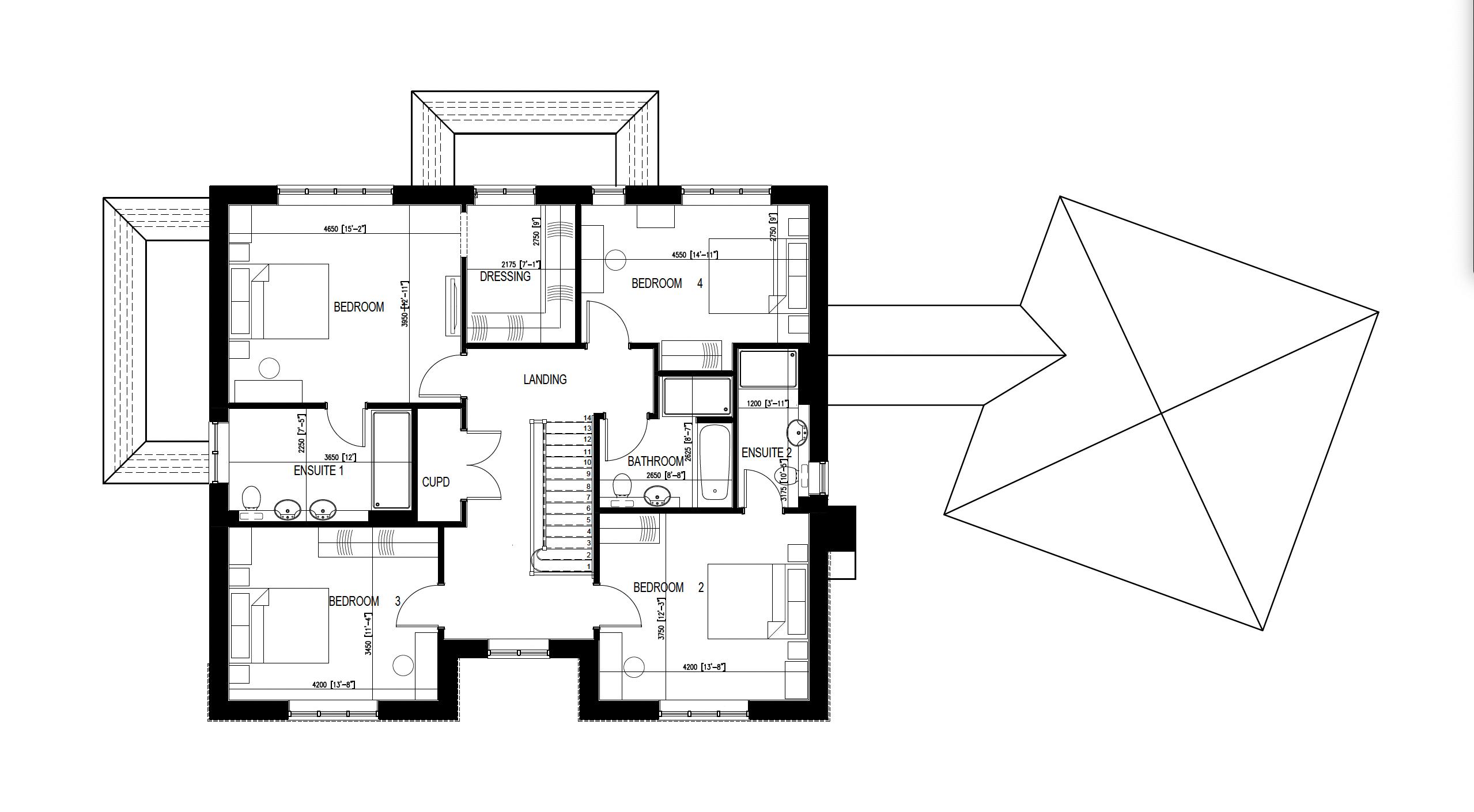
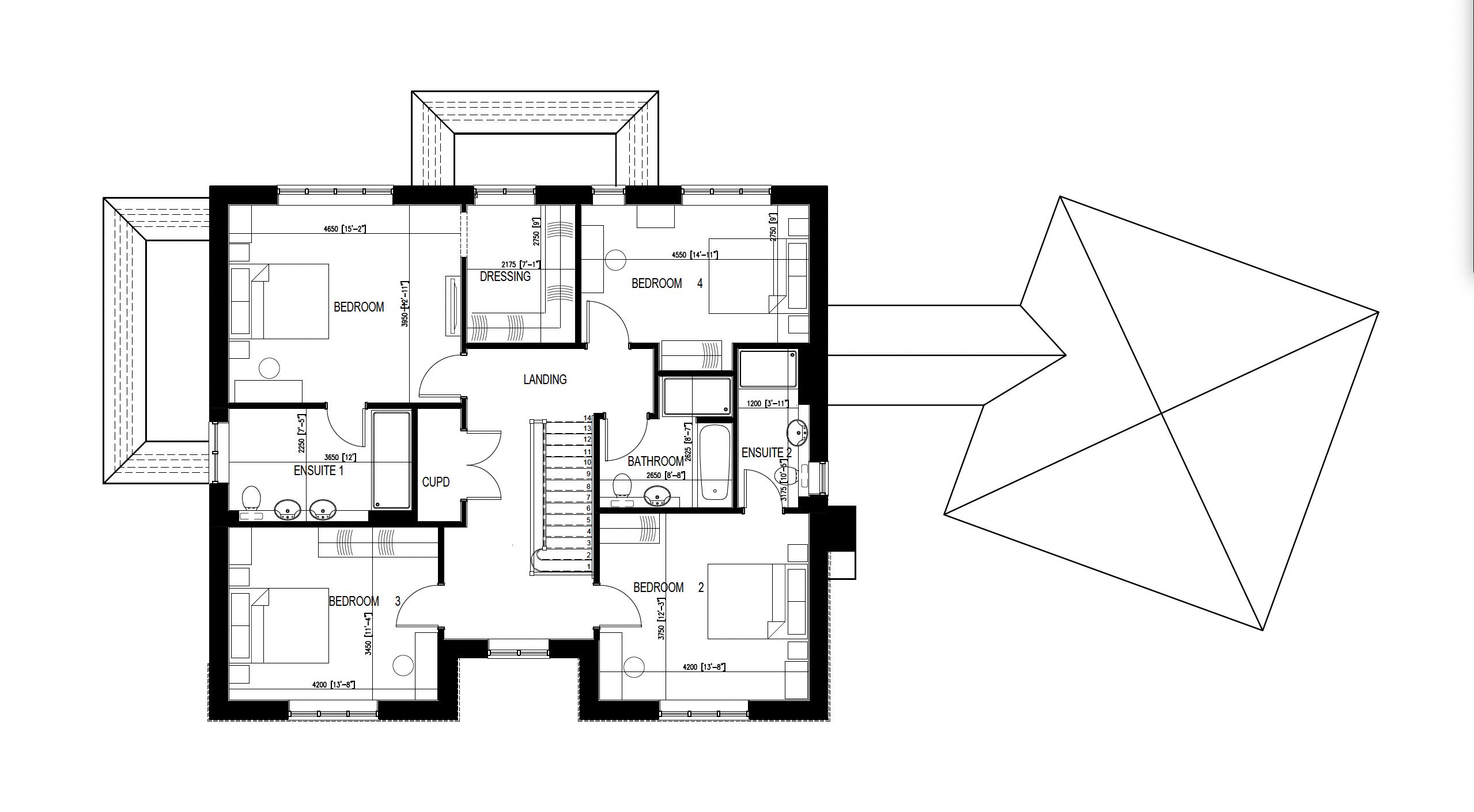
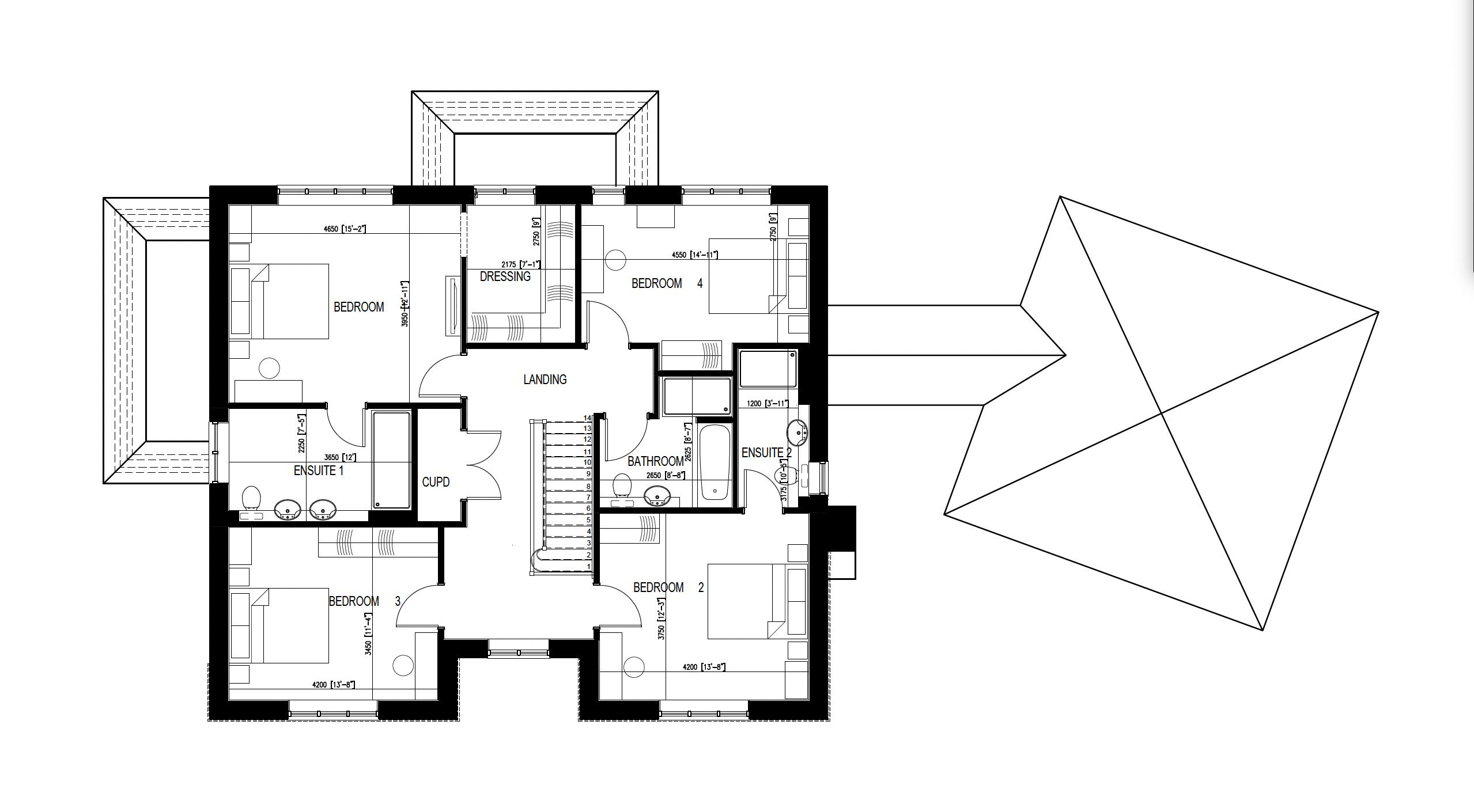
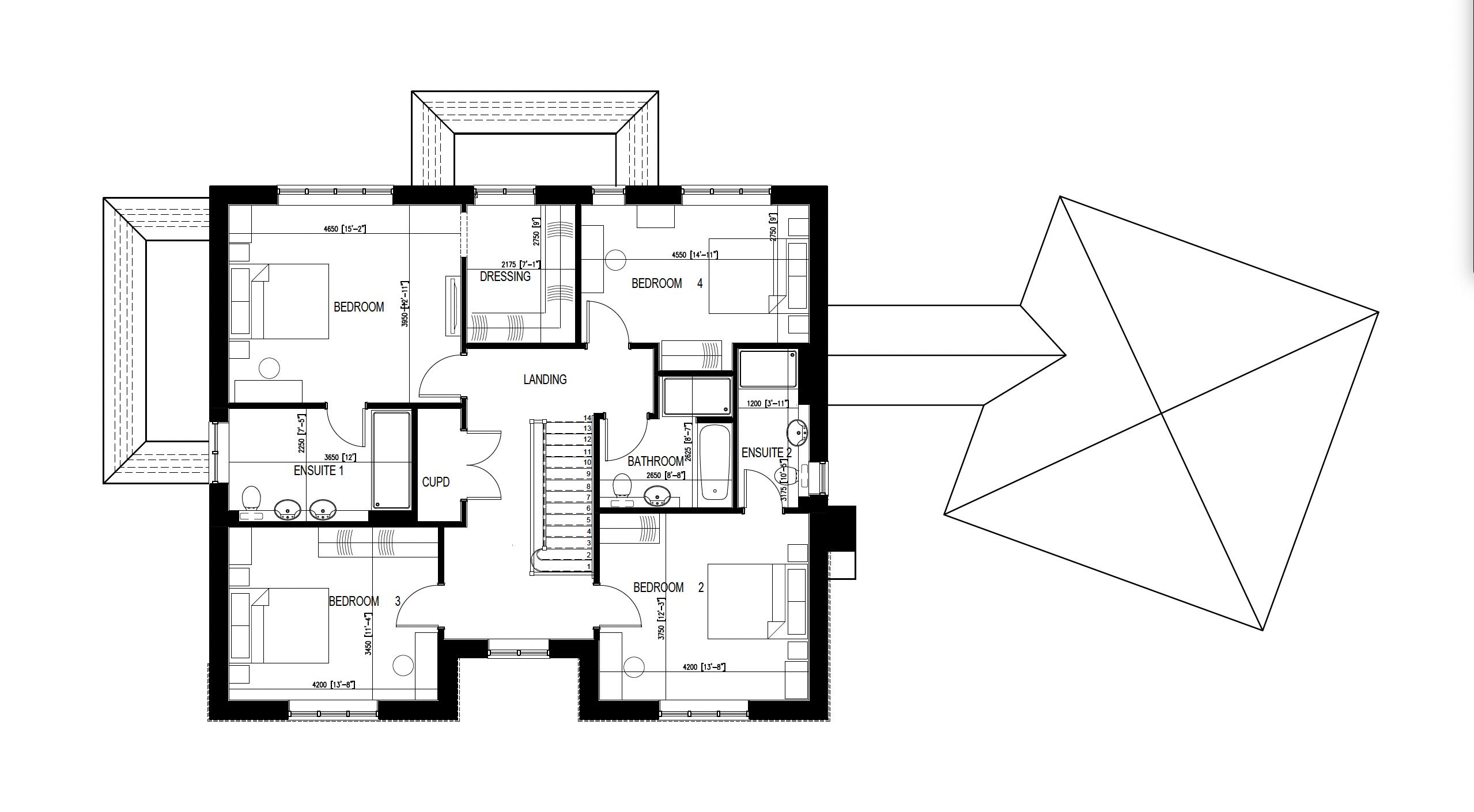
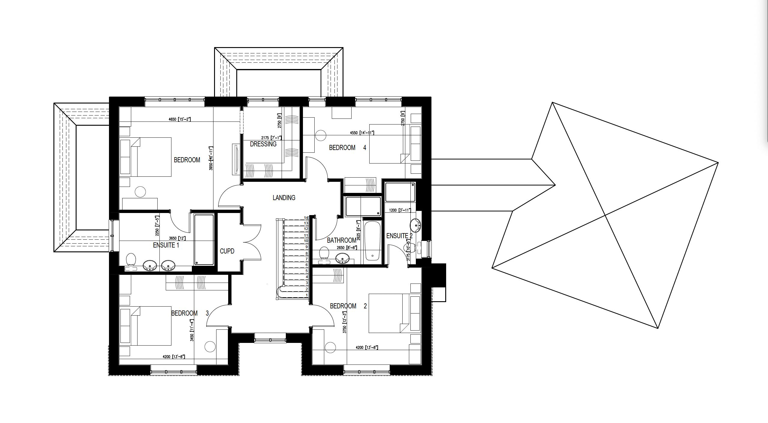
  • Four double bedrooms, 2 en-suite bathrooms
  • Master with dressing room
  • Double Garage

Property Summary

UNIQUE OPPORTUNITY

Nestled in the serene heart of Berkshire, a rare gem awaits – a plot of land with planning permission, just shy of half an acre, ready to be transformed into the home of your dreams.

In partnership with Christopher Wren Developments the distinguished local developer renowned for their attention to detail and commitment to excellence, we invite you to embark on a journey of bespoke living. Imagine the satisfaction of owning a meticulously crafted, high-end detached family home, spanning approximately 2500 square feet, designed to harmonise seamlessly with its wonderful surroundings.

With full planning permission secured for a four-bedroom detached home, this is not merely a plot of land; it’s a canvas awaiting your vision, a sanctuary waiting to be shaped to reflect your unique taste and lifestyle. Picture morning sun filtering through expansive windows, illuminating open-plan living spaces designed for both comfort and sophistication. Envision tranquil evenings in your meticulously landscaped south-facing garden, a private oasis offering respite from the bustle of daily life.

Located on the edge of one of Berkshire’s most coveted villages, this opportunity promises more than just a home – it offers a lifestyle of unparalleled luxury and convenience. From prestigious schools to quaint village shops, every amenity is within reach, ensuring that each aspect of your family’s needs is catered to with ease.

This is truly a unique opportunity to create a home that truly embodies your aspirations in this serene, yet well-connected haven. Contact us for further information.

Council Tax Band: TBC

Important – please read. These particulars do not constitute any part of an offer or contract. All statements in these details are made without liability on the part of Duncan Yeardley or the seller. They should not be relied upon as a statement or representation of fact and, although believed to be correct, are not guaranteed and form no part of an offer or contract. Any intending buyers must satisfy themselves as to their correctness.